Kloof 151 is a family residence located in Clifton, Cape Town, South Africa, which was designed by SAOTA and Antoni Associates. The home boasts amazing views over the beach and the surrounding cliffs, while its interior is quite elegant and sophisticated.
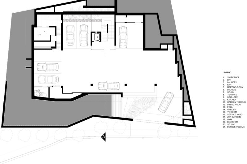
The estate is a 3 storey construction with building parking and a wide entrance to the basement, allowing for direct sunlight and a welcoming entrance to the house.
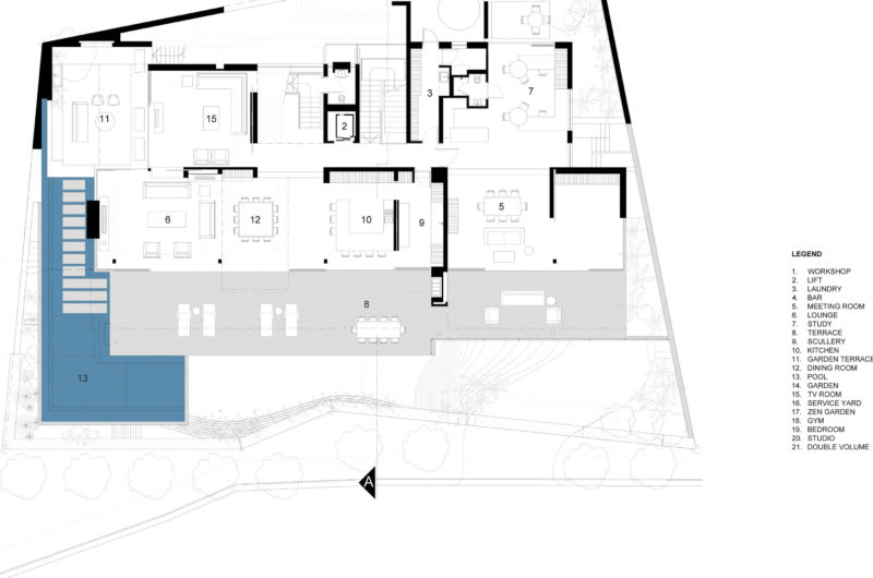
The living levels are directly connected to the spacious well covered terraces to the West or North, permitting visualizing the mountain slope and Lion’s Head.
A rim flow pool makes the connection of North Western corner of the site with the ocean.
A double volume splits the ground floor, enriching the spatial experience and creating a connection with the double volume stairwell.
The finishes are clean, natural and simple, including wide plank Walnut floors, off-shutter concrete soffits and unpolished large porcelain floor tiles.
The first floor includes 4 en-suite bedrooms, a gym and a studio space, the bedrooms offering a contemporary and bright atmosphere.














More Similar Articles Like This
Beach House CN – A Superb Contemporary Home in Peru
The Superb Maradiva Villas Resort & Spa in Mauritius
Opulent Mandarin Oriental Hotel in Paris
Astonishing El Tovar by the Sea
Contemporary BO House In Envigado, Antioquia, Colombia
Tips for Choosing the Right Blue Paint Color for Your Dining Room
Behr’s Brilliant Blues: 70 Shades of Stunning Paint Colors
Pure Perfection: Discover the Top White Paint Colors for a Flawless Décor