This sanctuary of luxury and natural beauty is arguably the finest property of its kind in the whole of Cape Town, Africa. It is called Mwanzoleo Residence and it is located in Bantry Bay, within walking distance from the lovely Clifton and Camps Bay beaches, street cafés, fine restaurants, and nighttime entertainment.
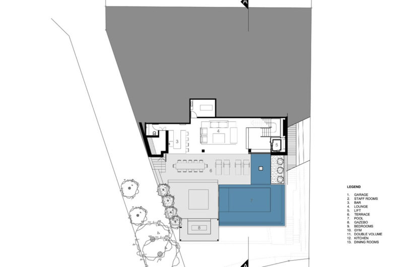
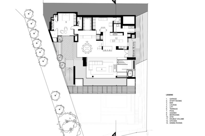
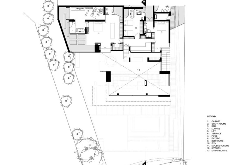
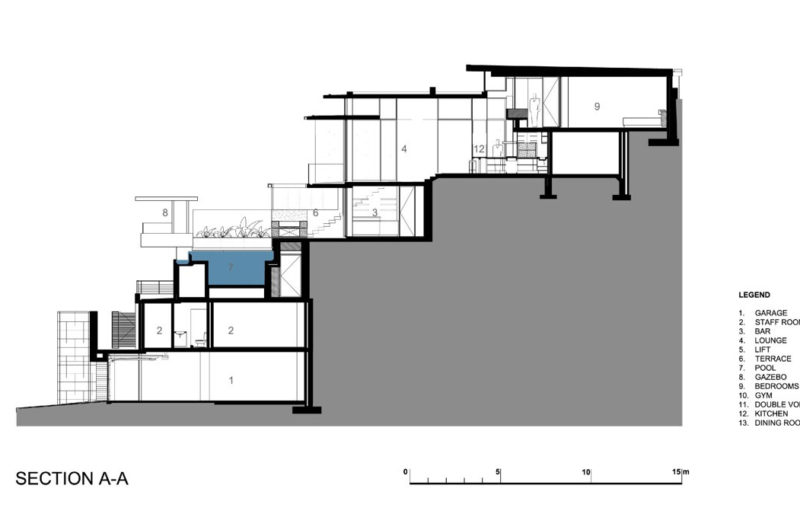
The residence has a dramatic rock backdrop and sweeping panoramic views from every one of its six levels. Designed by famous Cape Town-based studio SAOTA, the villa flaunts 11,830 square feet of living spaces and it is spacious enough to comfortably accommodate up to 10 guests. There are five bedrooms and five bathrooms in the house, all lushly appointed to the highest possible standards.
No expanse was spared for this opulent villa, and no detail was overlooked. Every nook and corner spells extravagance, with expensive furnishings and high-end finishes being present in every room. Huge windows ensure unobstructed sea views and keep a perfect connection with the beautiful outdoors.
The villa can be booked all year round at quite prohibitive rates: between $3,500 and $18,500 per day with a minimum stay of 5 days. The price includes 6 bottles of champagne as part of a very friendly welcome, plus breakfasts and lunches.
















































More Similar Articles Like This
Superb Luxury Penthouse in Portomaso, Malta
Shadowed Depths: Vintage-inspired Paint Colors for Dark Basements
The JKC1 House in Bukit Timah, Singapore
Vibrant Wood Tones: Explore a Spectrum of Spray Paint Colors!
Contemporary BO House In Envigado, Antioquia, Colombia
Marvelous Anantara Dhigu Resort
Spectacular Luxury House in Sarasota, Florida by DSDG Inc. Architects
Plain Geometric Residence Designed by Lidija Dragisic