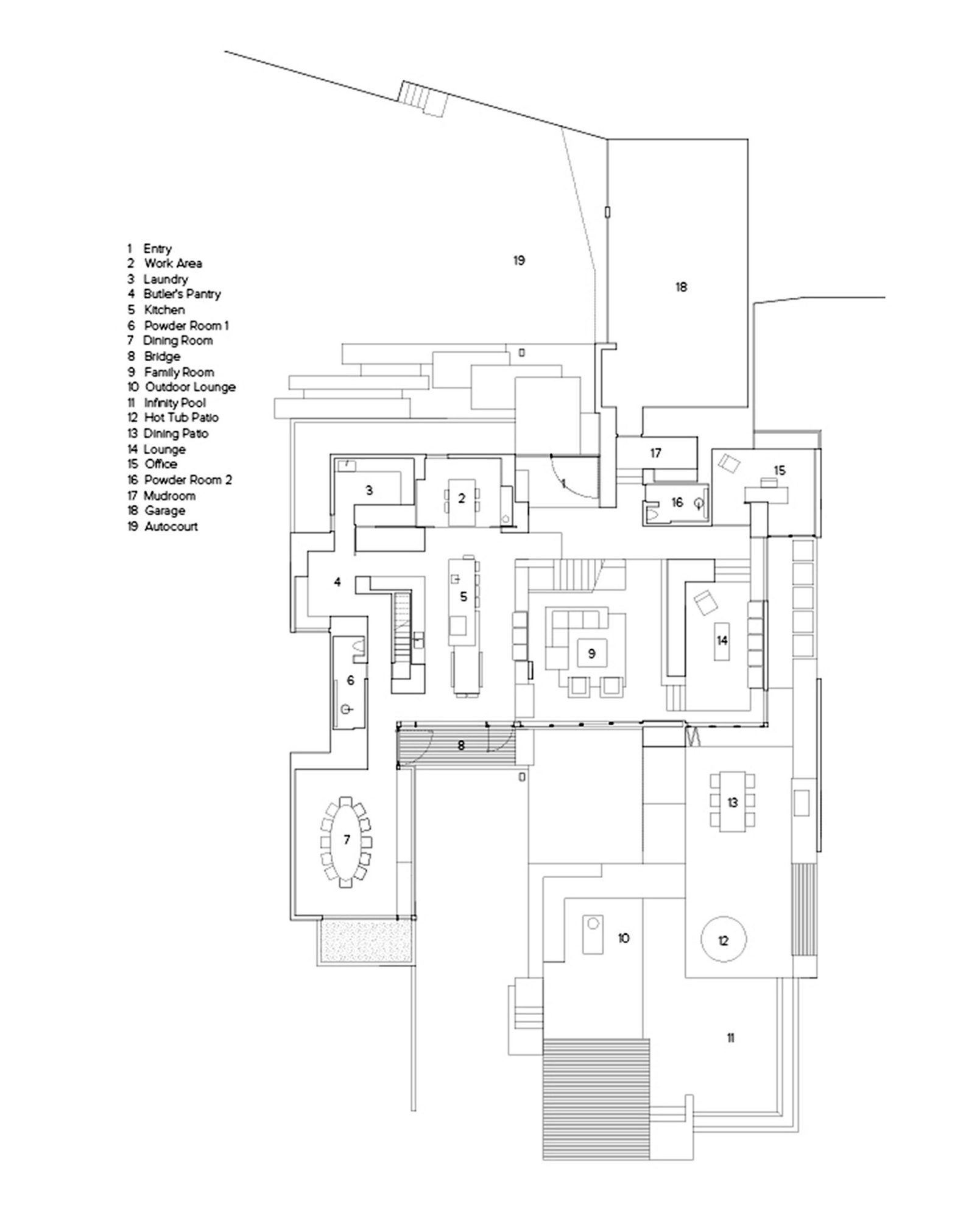
The Groveland House was sketched out by Mcleod Bovell and is located on a scenic site in West Vancouver, BC, Canada. Completed in 2013, it flaunts 9,000 square feet of living space and was built on a three-story sloping site that allowed the architects to divide the social living areas from the private ones. Therefore, the private spaces were inserted at the lower level, while the entertainment spaces and swimming pool are located on the middle floor. The upper level incorporates a putting green, which also offers great socialization and entertainment opportunities.
The central living spaces feature double-height ceilings that interact with a generous roof plane. The roof acts as a bonding agent for the different interior living areas and also helps define deep covered exterior spaces across all levels.
From the architect:
A gentle three-story sloping site offers significant connections to grade on all levels of the house: a putting green on the upper floor, pool and entertainment on the middle level and more intimate views to natural bedrock al the lower level.
A wide footprint and generous building area allows the central living portions of the house to expand into double-height spaces. These tall spaces interact with a large roof plane with a shaped underside.
This roof acts to bind the house together and create diverse, deep covered exterior spaces at all levels.
Architects: Mcleod Bovell
Location: West Vancouver, BC, Canada
Area: 9000.0 ft2
Project Year: 2013
Photographs: Ema Peters

















More Similar Articles Like This
Marvelous Anantara Dhigu Resort
Tips for Choosing the Right Blue Paint Color for Your Dining Room
Beautiful Apartment in Stockholm for $1 Million
Dreamy Oceanfront Chateau In West Vancouver, Canada
Superb Luxury Penthouse in Portomaso, Malta
Unique Click Clack Hotel In Bogota, Colombia
The Superb Maradiva Villas Resort & Spa in Mauritius
Vibrant Wood Tones: Explore a Spectrum of Spray Paint Colors!