Sketched out by SAOTA, the Cove 3 residence was completed in 2010 in Knysna, South Africa, and it flaunts 10,817 square feet of living space. It is a modern home that was built using high quality materials such as off-shutter concrete for the walls, timber for the cladding and Rheinzink for the roofs. The site itself offers exquisite panoramas of the sea, which can be admired from almost each room within the abode.
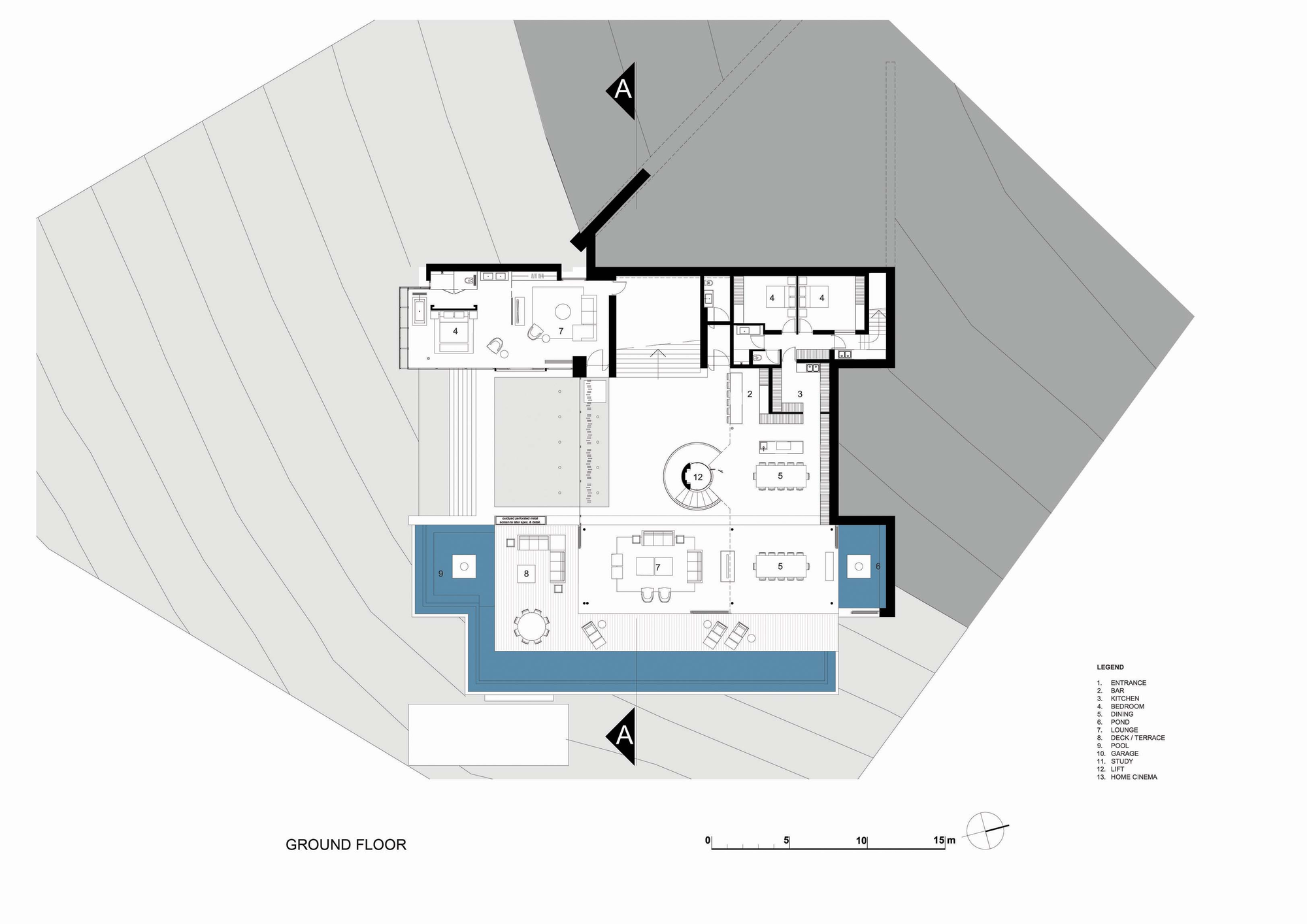
Cove 3 features a ground level that incorporates the social areas such as the living room, kitchen and dining room. There is also a mezzanine level that can be reached with the help of a spiraling staircase. The upper floor houses a luxurious master bedroom as well as a lounge that can be used for relaxation and socialization purposes. The staircase also drops through the floor and leads the way to a basement that includes a home theatre, another living room as well as accommodations for guests.
The children sleep in two bedrooms that can be found within an L-shaped extension to the South West. Since water is relatively scarce in Knysna compared to other parts of the world, the architects placed an underground cistern under the property’s garden terrace, which collects rainwater and provides a certain level of self-sufficiency.
From the architect:
Brief
“The brief was to create a home for a Johannesburg based family that could eventually be used as a family home but would initially be used for holidays. The site enjoys spectacular views and it was important that the connection to these views was maximised,” says Greg Truen, Project Partner.
Site
The site is in The Cove development at Pezula Estate outside Knysna. It enjoys fantastic sea views to the East and to the South. The approach is from the North West and there are houses that overlook the property from the East and the North. The site slopes from the North West to the South East.
Approach
The primary idea driving the design was to create a single living space with a single roof element floating over it that responded to the slope of the site. The roof is set at a sufficiently high level so that it is out of one’s line of sight from the living space, creating the illusion that one is sitting in the landscape rather than in a room looking out into a landscape. A large triangular cut-out in the roof reinforces a connection with the sky.
A very detailed solar analysis was done of the building to try and get direct sun (other than the rising East sun) out of the building. As a result, a midlevel horizontal sunscreen was added to the double height glass façade and the skylight is protected by a timber screen that hangs into the space to mitigate the scale of the double volume space. Care was also taken in selecting performance-glass that would minimise the impact of direct sun.
The building is approached from the North West at the top of the site. This elevation is low and horizontal. The choice of materials, off-shutter concrete, Rheinzink roofing, timber cladding, stone and exposed aggregate will allow the building to fade into the landscape as it ages. The building is orientated towards the view; one enters at the upper level of the double volume looking towards the ocean. The contrast with the external approach is very powerful. A grand stair pulls on onto the living level which holds the kitchen, dining room and living room. To the right the landscaping is pulled into the building, blurring the distinction between the inside and the outside.
A spiral stair connects the living level to a private lounge and the master bedroom on a mezzanine level. This stair was conceived as a sculptural element in the large volume to again mitigate the scale of this space. This spiral drops through the floor to a lower level which houses a guest bedroom, a home theatre and a living room.
An L-shaped extension to the South West houses the two children’s bedrooms. The bedrooms have curved curtain tracks that create very intimate sleeping spaces at night which contrast with the very open daytime character. Water is a critical issue in this part of the world and a huge underground cistern was created under the garden terrace to harvest rainwater to minimise the houses’ reliance on the municipal water system. A heat pump and water based under floor heating system uses less energy than would ordinarily be required for a house of this magnitude. The concept behind the landscaping was to reinstate the fynbos and let the building float over this restored surface.
“The interiors are uncluttered and reflect the easy living requirements of the clients. Spaces are sparse, and have been furnished minimalistically which emphasise the strong architectural lines and volume of the architecture. The furniture is modern, and a number of bespoke pieces were sourced from the designer’s retail outlet OKHA. A neutral palette of ivory, stone and shell complement the natural architectural timber and concrete finishes selected throughout,” says Mark Rielly of ANTONI ASSOCIATES.
Design Team: Greg Truen & Roxanne Kaye
Area: 1005.0 sqm
Year: 2010
Photographs: John Devonport, Micky Hoyle courtesy of VISI
Interior Design: Antoni Associates
Antoni Associates Team: Mark Rielly & Tavia Pharaoh














More Similar Articles Like This
The Superb Maradiva Villas Resort & Spa in Mauritius
Stunning Sustainable Home in Costa Rica by SPG Architects
Stunning Banyan Tree Ungasan Bali in Indonesia
Exploring the New World of Luxury Hoteling
Best paint colors for the living room
Vibrant Concrete Floor Paint Colors to Elevate Your Space
Behr’s Brilliant Blues: 70 Shades of Stunning Paint Colors
Superb Luxury Penthouse in Portomaso, Malta