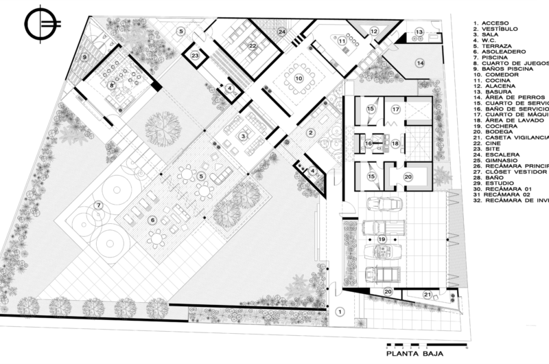
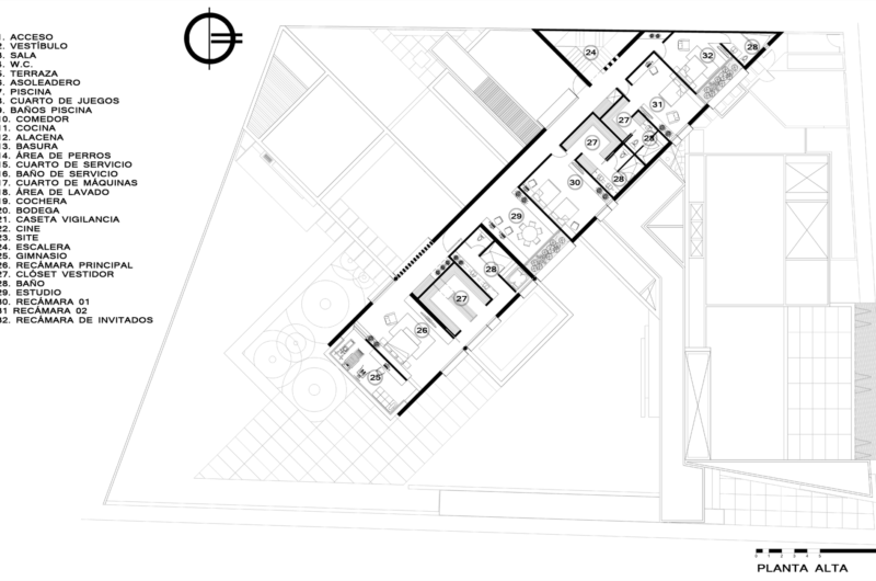
Designed by Carrillo Arquitectos y Asociados, the Temozón House was built in 2013 in Yucatan, Mexico. Flaunting a distinct contemporary design that features straight lines and angular shapes, the Temozón House impresses with a sophisticated yet welcoming appearance that is surpassed in greatness only by the splendid living arrangements found within its walls.
In order to ensure a distinct connection between the indoor and outdoor areas, the house was built using an L-shaped plan that partially encircles an interior garden. The garden is in close proximity to a swimming pool that guarantees endless opportunities for relaxation.
Moving on to the interiors, we find a generous amount of high-end amenities and welcoming décor elements throughout. Comfortable seating arrangements, large dining tables, lounging areas and impressive lighting arrangements contribute to an atmosphere of wellness and peace that extends across all 12,500 square feet of living space.
Photos by David Cervera






















More Similar Articles Like This
Beach House CN – A Superb Contemporary Home in Peru
Heavenly Lily Beach Resort & Spa In Huvahendhoo, Maldives
Different Types Of Foundations For Summer Houses and Garden Buildings
Gorgeous And Spacious Home In Sunset Strip
Exploring the New World of Luxury Hoteling
Tips for Choosing the Right Blue Paint Color for Your Dining Room
Outstanding Bodrum Houses in Yalikavak, Turkey
Spectacular Rooftop Apartment by Innocad