It’s hard to find a project signed by SAOTA that’s anything less than spectacular, and the Clifton 2A house in Cape Town in South Africa is no exception. In fact, this might very well be the most amazing home in Cliffton, especially if we’re to consider its spaciousness and luxuriousness. The abode flaunts three levels and benefits from staggering views of the Atlantic Ocean, Twelve Apostles and Camps Bay.
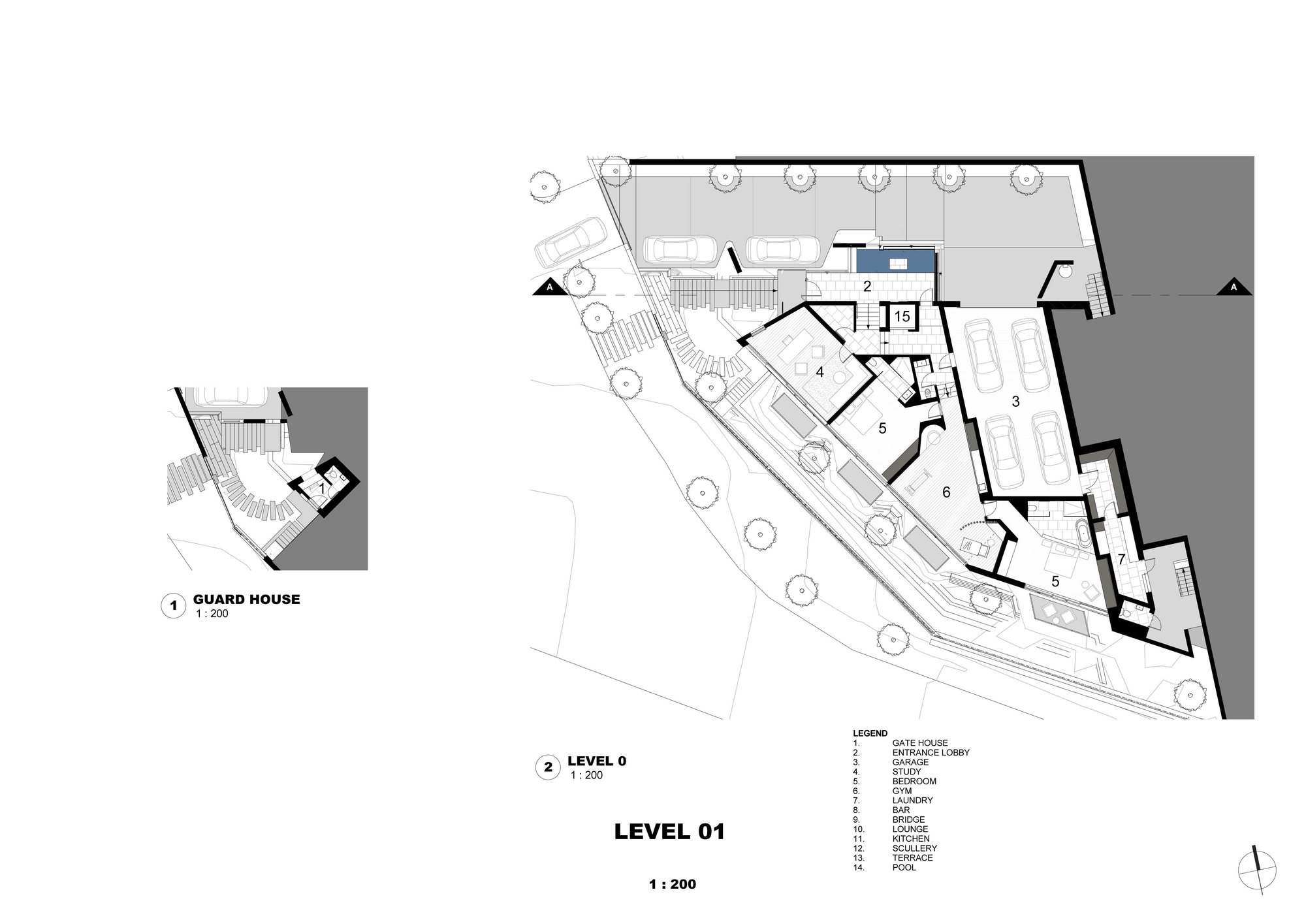
The primary living areas are elevated in order to benefit from utmost privacy and the most incredible views of the surrounding areas. At the ground level, there is a massage room, a state-of-the-art gymnasium, a study and fabulous guest bedrooms. There’s also an entertainment room just to the north of the main staircase. The kitchen, dining area, family room and lounge are located to the south and are linked to an outdoor terrace, which comprises a blue mosaic rimflow swimming pool.
The spacious family bedrooms are located at the second floor and feature their own private balconies, en-suite bathrooms and dressing rooms. As expected, the master bedroom is an epitome of luxury that boasts a plethora of high-end amenities while benefiting from breathtaking panoramas of Table Mountain and its cable car.
From the architect:
A flexible contemporary family residence on a spectacular but challenging site
The site is positioned on the ridge below Lions Head with 270° views of the Atlantic Ocean, Camps Bay and the Twelve Apostles beyond. It is an extreme corner site – a compact wedge of steep, predominately south-facing hillside with exposure to prevailing winds and its longest boundary on a busy road. Careful analysis of all site conditions largely informed the design.
A key strategy to create a generous level for principal living rooms was to elevate the main level on a plinth comprising of guest bedrooms and secondary spaces such as the Gym, Study, Garage and all plant This Ground Floor is partially set into the steep site thereby maximising the living level and raising it above the noisy provincial road. The First and Second Floors were then set back, fragmented and rotated to create a central but sheltered external terrace. A glass bridge forms the link between the fragmented structures at the upper levels and permits North sunlight to shine between the bedroom wings and into the central areas on the South side of the house.
By elevating the main living areas and with careful consideration of the landscaping around the Ground Floor – privacy from the road and noise reduction was achieved. The Ground Floor rooms all have double glazing.
Generous overhangs, external sliding shutters and perforated steel and aluminium eaves assist with naturally shading the facades. All doors and windows have performance glazing and are mostly full height which, together with the careful arrangement of internal spaces, ensured that the magnificent views are optimised for all rooms.
Landscaping was also a priority; 7 yellow wood trees were soften the verge and lush vegetation conceals retaining structures; on the level above a more formal lawn helps relocate the living areas on their elevated plinth.
On arrival one is lead up delicate cantilevering concrete stairs alongside an immense off-shutter concrete wall which tapers dramatically towards its base – and thence into a triple volume Entrance Foyer. Here visitors are welcomed by a sculpture set into a water-feature and, through full height glazing, glimpses of mountain beyond. Monolithic stairs are suspended above and filter shafts of refracted morning light creating a sense of calm. The Study, Gym, Massage Room and luxurious Guest Bedrooms are all situated at the Ground Floor behind vegetation, screens and double glazing considerately layered to provide privacy and peace.
North from the main stairs the Entrainment Room with its faceted weathered copper bar, natural stone tops and custom laser-cut aluminium screen behind presents a rich, detailed contemporary living space. The Family Room, Kitchen, Dining and Lounge are to the South and all flow seamlessly onto the centrally positioned External Terrace which, though elevated, is sheltered by the carefully rotated bedroom wings above- whilst views out are vastly improved. A blue mosaic rimflow pool runs the length of the terrace and brings sea and sky into the living spaces.
The family bedrooms are strategically positioned at the Second Floor with expansive views and opulent interiors. All have their own dressing rooms, en-suite bathrooms and private balconies.
The main en-suite enjoys lush tranquillity of all white finishes complete with an outside shower and views onto the National Park. The linearity of the dressing room is accentuated by central skylights which scoop natural light into an internal space surrounded by full-height joinery. The master bedroom is set forward as if propelled towards the view of the coast whilst clerestory glazing perfectly capture another view up to the cable station and Table Mountain. A customised fireplace with a weathered Corten conical flue and polished concrete plinth complete the luxurious live-in haven whose off-shutter concrete wall contrast with slick stained oak panelling and natural timber floors.
Design Team: Philip Olmesdahl, Tamaryn Fourie, Thaabe Ramabina
Interior Design: Janine Lazard Interiors
Photographs: Adam Letch













More Similar Articles Like This
The Sophisticated Casa Villa Flamingo in Spain
Exquisite Crossacres Mansion In Surrey, England
Vibrant Wood Tones: Explore a Spectrum of Spray Paint Colors!
A Superb Italianate Mansion in California, USA
Shadowed Depths: Vintage-inspired Paint Colors for Dark Basements
Outstanding Bodrum Houses in Yalikavak, Turkey
Unique Click Clack Hotel In Bogota, Colombia
Marvelous Anantara Dhigu Resort