Modern, comfortable and self-sufficient to a certain degree, the Woollahra House is located in Sydney, Australia and was completed in 2015 by Tzannes Associates. It was built on a relatively small lot in a crowded neighborhood, but even so, the architects managed to implement a beautiful garden on the property, which adds a touch of naturalism while encouraging outdoor relaxation. The building plan and the facades were designed to ensure cross ventilation, which is why air conditioning is installed only in the dining rooms, living room and main bedroom.
The orientation of Woollahra House aims to maximize solar gain from the north, but the amount of light that actually enters the rooms is controlled using operable blinds and eave overhangs. The south, east and west-facing parts of the abode are more closed off. Another interesting aspect of the residence is that it includes its own energy generation infrastructure based on photovoltaic cells. It also boasts efficient LED lighting as well as rainwater retention systems.
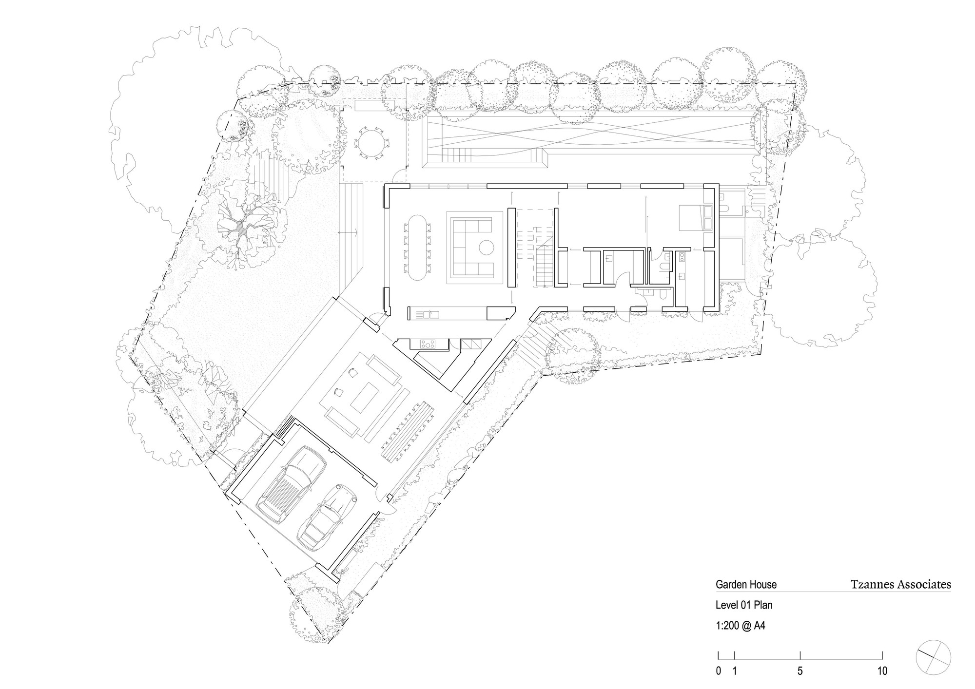
As we mentioned before, a series of gardens surround the entire building, and they can be admired from almost every room due to the numerous openings inserted on all sides of the structure.
From the architect:
The project is for a new house set in a compact urban site. Within this dense situation we have created a relaxed yet rich garden landscape of interconnected indoor and outdoor rooms.
The new house was positioned to maximise access to northern light. To achieve this, the home hugs the bent southern boundary and is split into two distinct wings around the point of rotation; formal and informal areas split with the kitchen acting as fulcrum between the two. A dialogue is established between the two components of the house: the entertaining or public space/room, a large double height space with fireplace, dining and seating areas, and the more intimate private rooms for family use, which include a family room, bedrooms upstairs and a study/nanny’s room or grandmother’s apartment with its own bathroom downstairs.
Gardens surround the building. The house is open on all sides with many views through the plan linking rooms. The character of a house in a garden is immediately apparent through its soft presentation to the street with the only built structures being the entry gate and garage. The gardens extend to the footpath edge with the boundary fence absorbed by planting.
Sustainability
The house addresses sustainability in a number of key areas. The strategy and the client’s ambition for the site addresses questions of urban density and how this can be resolved with the apparently contradictory concerns of a large house on a relatively small lot, issues of privacy and impacts on surrounding properties resulting from urban density as well as how these issues might be addressed within a garden setting.
The house is oriented and designed to maximise northern solar gain whist providing opportunities to control this solar access through operable blinds and eave overhangs. In contrast, the elevations to the east west and south are considerably more closed, controlling both solar gain and heat loss. Both the building plan and its facades have been designed to facilitate cross ventilation (air conditioning is only provided to the main bed, living and dining rooms). Thermal mass is provided in the building interior to maximise the benefits of these strategic moves.
Direct detailing and a restricted material palette favouring integral finishes limit the need for ongoing maintenance. Face brickwork is paired with oiled hardwood in sheltered locations, protected steel and oxide-tinted concrete.
The house also implements a series of traditional passive design strategies as well as provides some energy generation infrastructure. LED lighting, photovoltaic cells, stormwater and rainwater retention are also provided by the development.
Architects: Tzannes Associates
Location: Sydney NSW, Australia
Builder: Paul King
Landscaping: William Dangar & Associates
Project Year: 2015
Photographs: Michael Nicholson











More Similar Articles Like This
Heavenly Lily Beach Resort & Spa In Huvahendhoo, Maldives
Saguaro Palm Springs by Joie de Vivre
Exquisite Crossacres Mansion In Surrey, England
Unique Click Clack Hotel In Bogota, Colombia
Exceptional Coronado Bay Front Estate in California
The Superb Villa Verai on Phuket Island, Thailand
Stunning Sustainable Home in Costa Rica by SPG Architects
Contemporary BO House In Envigado, Antioquia, Colombia