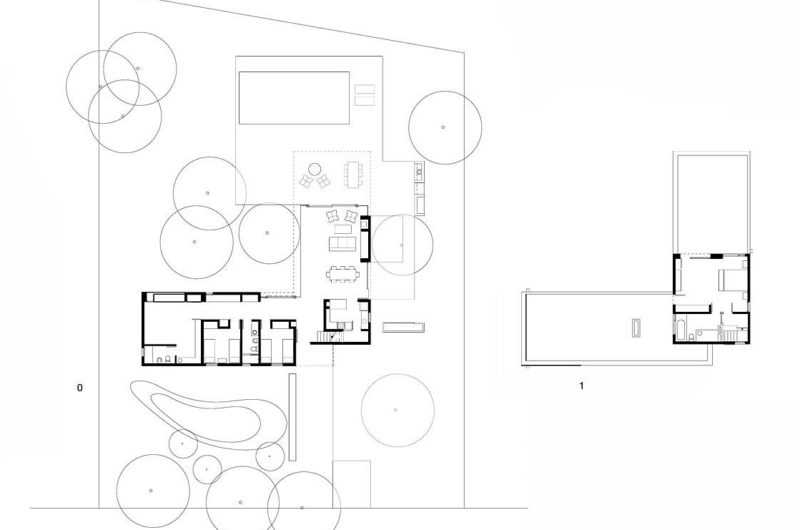
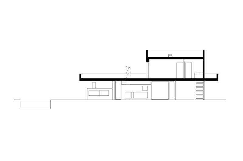
RDR Arquitectos is a Buenos Aires-based studio that is part of Richter Dahl Rocha & Associés. One of their most remarkable projects is the beautiful Villa La Hilaria, an L-shaped vacation home in Punta del Este, Uruguay.
Among the best features of this two-story contemporary residence, there is the lovely outdoor area, with a perfectly cut lawn, comfy sun lounges, and a large swimming pool, all surrounded by a lush vegetation and delicate flowers.



















More Similar Articles Like This
Superb Luxury Penthouse in Portomaso, Malta
Boracay Resort & Spa in the Fascinating Philippines
Amazing Four Seasons Resort Bora Bora
Beach House CN – A Superb Contemporary Home in Peru
Exceptional Coronado Bay Front Estate in California
Beautiful Apartment in Stockholm for $1 Million
Dreamy Oceanfront Chateau In West Vancouver, Canada
Extraordinary Constance Halaveli Maldives Resort