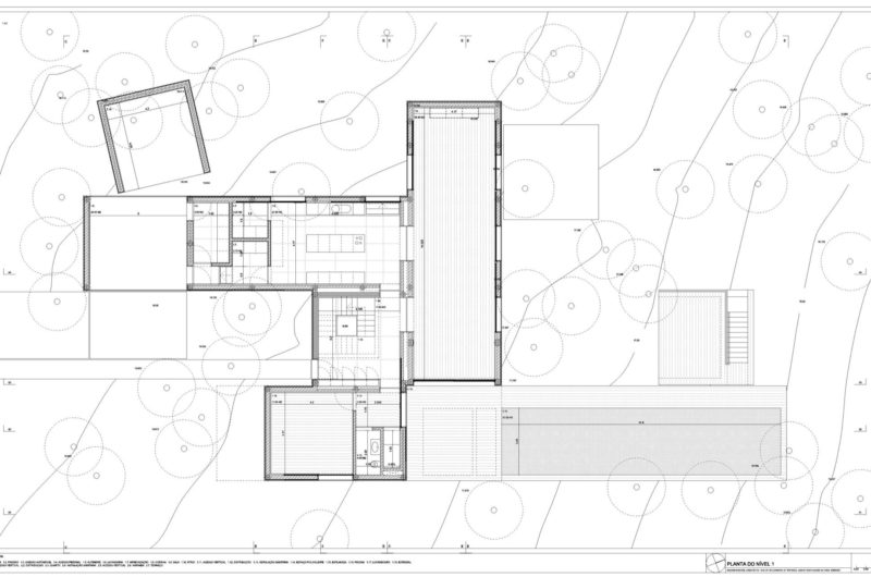
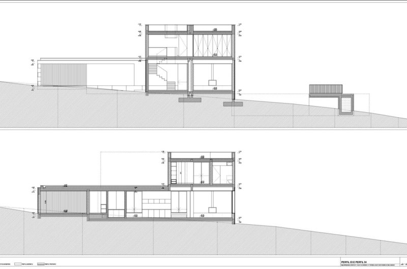
Nelson Resende Arquitecto designed the House in Praia Verde located in Algarve, Portugal. It owns a minimalistic interior accessorized by simple neutrals with wooden accents.
The house is set on a plot near the beach where the surroundings are mainly occupied by isolated houses, the distances between the constructions being filled with pine trees and greenery.
The purpose of this project was to design a vacation home for a family that enjoys a lot the sea and the summer.
Because the house had to be adapted to the hot climate, there were built several volumes in different positions but with strong connection between them, becoming in this way less social and more private.
Photos by Fernando Guerra & Sergio Guerra



















More Similar Articles Like This
10 Different Types of Blue Paint Colors
Marvelous Anantara Dhigu Resort
Dreamy Oceanfront Chateau In West Vancouver, Canada
Spectacular Luxury House in Sarasota, Florida by DSDG Inc. Architects
The Sophisticated Casa Villa Flamingo in Spain
Secluded Naladhu Island in Maldives
A Superb Italianate Mansion in California, USA
Unique Click Clack Hotel In Bogota, Colombia