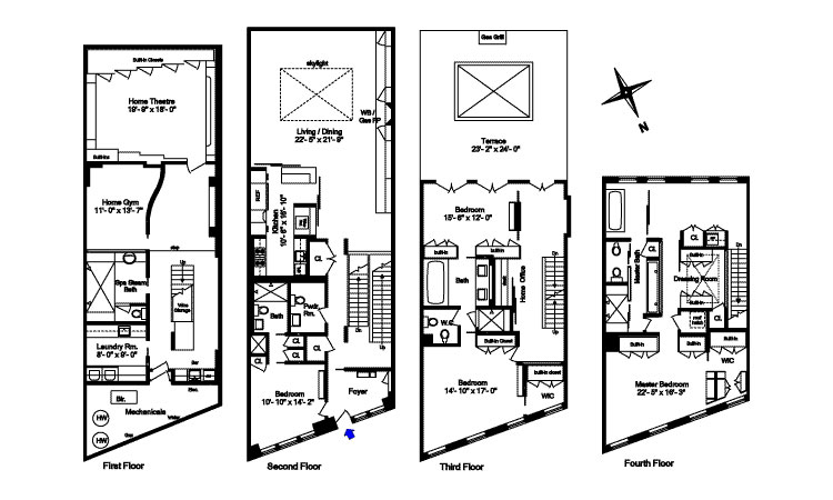
Extensively renovated by designer/architect Leopoldo Rosati, this 1915 townhouse in Tribeca, NYC flaunts three stories of high-end amenities and elegant interiors. It has a total of 6,804 square feet of living space.
The lower level holds a top notch home theater, spa steam bath, fully equipped gym, and a bar. One floor up you can find a guest/nanny suite with separate entrance for extra privacy, a gorgeous great room with fireplace and large skylight, and a luxe Boffi Kitchen with Miele & Gaggenau appliances.
On the second floor there are two bedrooms with custom closets, and a spacious bathroom with Italian limestone, waterfall shower, and Duravit jet tub. This level also features a spacious terrace with Wolf natural gas grill.
Finally, the third floor is where the master suite is located, with its luxe limestone bath, his and hers walk-in dressing rooms/closets, wet bar, and wide plank floors. A custom steel staircase connects the different levels, and a Control 4 automation system controls the speakers and the lighting system throughout the house.






















More Similar Articles Like This
Heavenly Lily Beach Resort & Spa In Huvahendhoo, Maldives
5 Ways to Turn Your Yard Into a Fancy Space
Santa Barbara Style Home in Paradise Valley, Phoenix
Exploring the New World of Luxury Hoteling
Gorgeous And Spacious Home In Sunset Strip
Exquisite Crossacres Mansion In Surrey, England
Pure Perfection: Discover the Top White Paint Colors for a Flawless Décor
The JKC1 House in Bukit Timah, Singapore