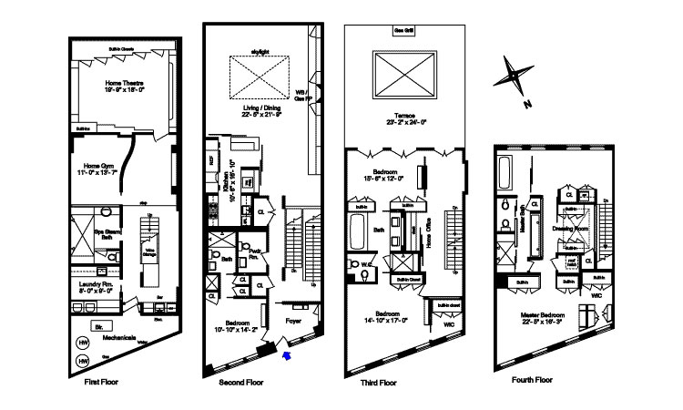
Extensively renovated by designer/architect Leopoldo Rosati, this 1915 townhouse in Tribeca, NYC flaunts three stories of high-end amenities and elegant interiors. It has a total of 6,804 square feet of living space.
The lower level holds a top notch home theater, spa steam bath, fully equipped gym, and a bar. One floor up you can find a guest/nanny suite with separate entrance for extra privacy, a gorgeous great room with fireplace and large skylight, and a luxe Boffi Kitchen with Miele & Gaggenau appliances.
On the second floor there are two bedrooms with custom closets, and a spacious bathroom with Italian limestone, waterfall shower, and Duravit jet tub. This level also features a spacious terrace with Wolf natural gas grill.
Finally, the third floor is where the master suite is located, with its luxe limestone bath, his and hers walk-in dressing rooms/closets, wet bar, and wide plank floors. A custom steel staircase connects the different levels, and a Control 4 automation system controls the speakers and the lighting system throughout the house.






















More Similar Articles Like This
Exquisite Crossacres Mansion In Surrey, England
Vibrant Wood Tones: Explore a Spectrum of Spray Paint Colors!
Wonderful Yachting Club Villas at Elounda Beach by Davide Macullo Architects
Superb Luxury Penthouse in Portomaso, Malta
Vibrant Concrete Floor Paint Colors to Elevate Your Space
Beautiful Apartment in Stockholm for $1 Million
Gayton Road Residence by Paxton Locher Studio
Spectacular Rooftop Apartment by Innocad