Travertine Dream House is a beautiful, contemporary residence designed by Wallflower Architecture + Design Studio. The four-story house is located in Serangoon, a peaceful town in Singapore.
The owners had some simple requirements for the architects. They wanted the house to be functional (to incorporate greenery and to maximize the usable area) and aesthetic (to use travertine for the architectural finish).
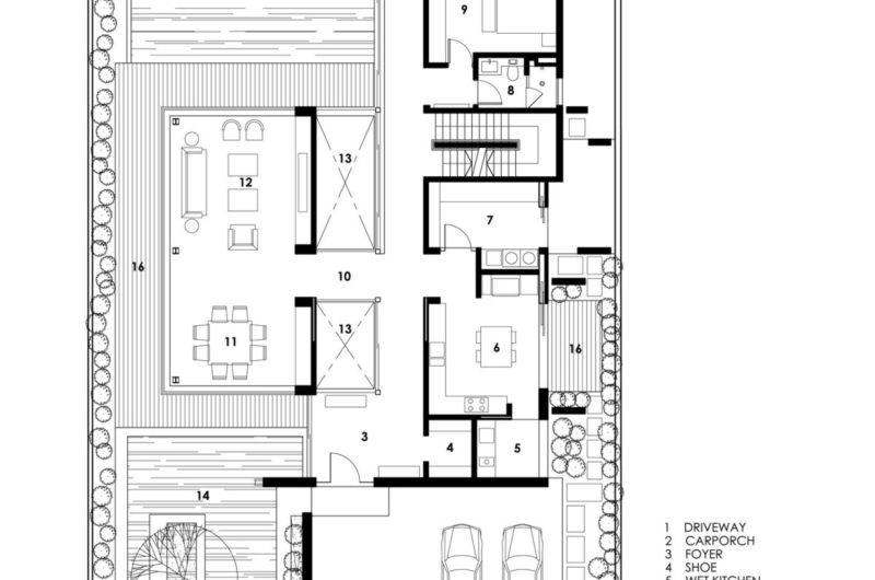
The house has a simple design: two parallel blocks, which are connected through a glass enclosed bridge that allows natural light to flow into the basement spaces. The western walls, covered with thick travertine and featuring large overhangs, offer protection against the sun heat. The bedrooms, living areas and the entry were placed longitudinally in order to be naturally ventilated and take advantage of the natural light.
The property abounds in green and blue areas, given by the vast garden and the sparkling water of the pool. The entertainment and guest rooms from the basement are flooded by natural light and fresh air which come through a sunken moss garden courtyard, the dining and living areas from the ground floor open into a swimming pool and a fish pond, and the third storey flat is in fact a roof garden and recreational deck.




















More Similar Articles Like This
The Superb Villa Verai on Phuket Island, Thailand
Best paint colors for the living room
Astonishing El Tovar by the Sea
Boracay Resort & Spa in the Fascinating Philippines
How Seattle Lawn Care Service Deals With Overgrown Lawns
Santa Barbara Style Home in Paradise Valley, Phoenix
Stunning Sustainable Home in Costa Rica by SPG Architects
Amazing Four Seasons Resort Bora Bora