The P House is an outstanding masterpiece of architecture and design that was created thanks to a collaboration between Marcio Kogan of Studio MK27 and Lair Reis. Built in 2012, the residence can be found in the Brazilian city of São Paulo. Located in close proximity to the Pinheiros River, the P House benefits from exceptional views of the surrounding nature and stands ready to provide irreproachable living arrangements for its owner and his or her lucky guests.
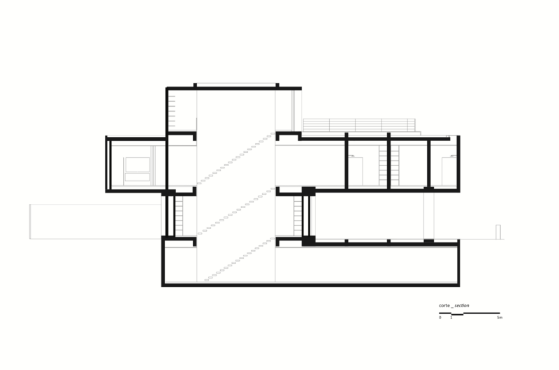
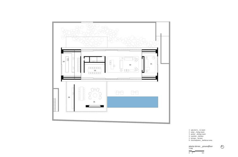
The residence features a total of 3 floors that include no less than 4 bedrooms, a family room, a dining room, a living room and an office. The basement comprises various utility rooms as well as the gymnasium, the garage and the laundry room. Access to all of these various areas is facilitated by a continuous staircase that ascends in a spiraling motion towards the different volumes of the house.
The public and private areas of the house are distinguished efficiently and placed strategically. For example, the bedrooms benefit from quiet and privacy and a convenient orientation towards the main swimming pool. You can admire the P House in its entire splendor by browsing through the following images.
Photos by FG+SG – Fernando Guerra, Sergio Guerra





























More Similar Articles Like This
Beach House CN – A Superb Contemporary Home in Peru
A Superb Italianate Mansion in California, USA
Exploring the New World of Luxury Hoteling
Plain Geometric Residence Designed by Lidija Dragisic
Green Gables Home In Fairfield, Connecticut, United States
Saguaro Palm Springs by Joie de Vivre
Outstanding Bodrum Houses in Yalikavak, Turkey
Vibrant Concrete Floor Paint Colors to Elevate Your Space