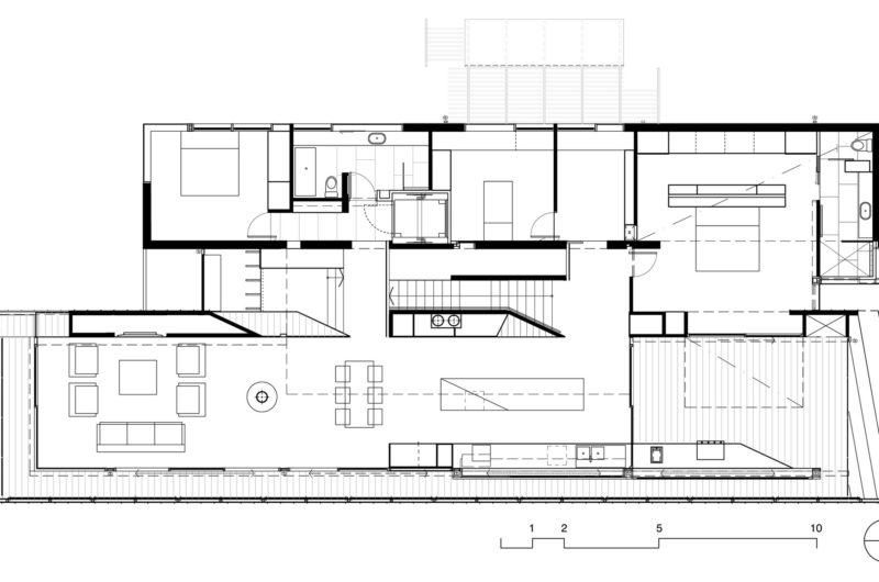
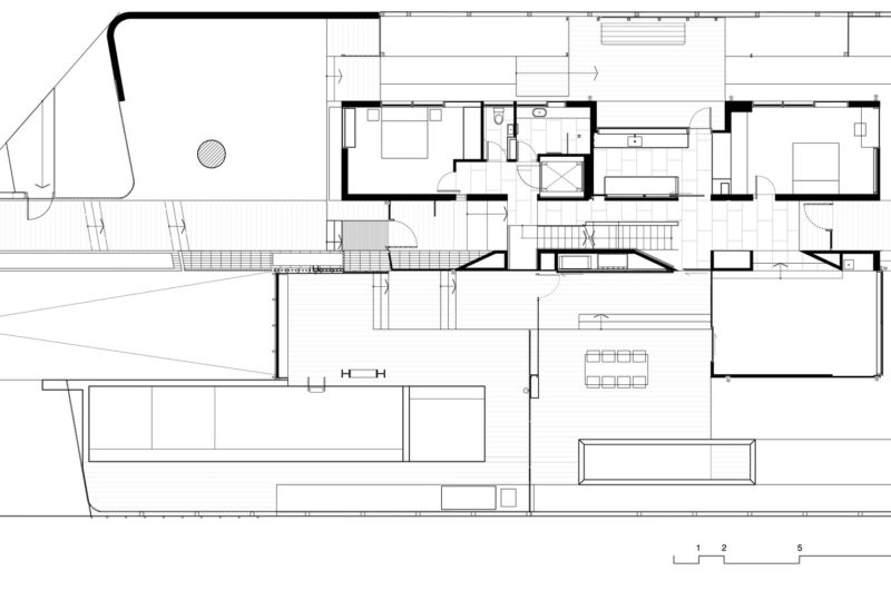
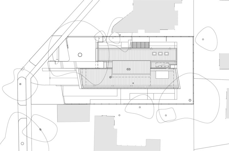
Beaumaris House is a beautiful two-story home in Melbourne, Australia, designed by Maddison Architects. You can find it on one of the most elevated seaside areas in Beaumaris, flaunting stunning panoramic views towards Philip Bay. The orientation of the house and the resulting views dictated the rest of the design.
The building was split in two individual volumes: one for the living and social spaces, facing south, and another one for the private areas and bedrooms, with two levels and facing north. The suburb in which the residence is situated was established around the 1950s and 1960s. Consequently, Maddison Architects did all their work while trying to preserve the precious experimental architecture of that time.
For sustainability purposes, the northern roof was lifted, thus effectively controlling sun access into the luminous living areas. Also, the house has a thermal chimney, remote controlled highlight windows, aluminum louvers, a geo-thermal bore that heats the interiors and the pool, rain water collection system, low e glass, low energy led lights, and more.
Photos by: Gerrard Warrener, Rhiannon Slatter















More Similar Articles Like This
Astonishing El Tovar by the Sea
Behr’s Brilliant Blues: 70 Shades of Stunning Paint Colors
Green Gables Home In Fairfield, Connecticut, United States
Best paint colors for the living room
How Seattle Lawn Care Service Deals With Overgrown Lawns
Opulent Mandarin Oriental Hotel in Paris
Stunning Sustainable Home in Costa Rica by SPG Architects
The Sophisticated Casa Villa Flamingo in Spain