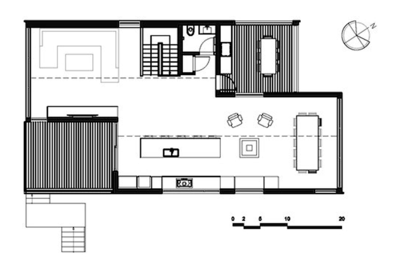
Sketched out by the skilled architects at MU Architecture, the Malbaie VIII residence in Cap-à-l’Aigle, Canada is a masterpiece in all regards. The designers that were in charge of shaping this lovely home are named Sabrina Charbonneau, Pierre-Alexandre Rhéaume, Jean-Philippe Bellemare, Charles Côté and Jean-Sébastien Herr, while the one in charge with the structural engineering was Chevrons Charlevoix. The residence was completed in 2013 and boasts 3,400 square feet of living space as well as 2 stories and irreproachable living arrangements throughout.
The plethora of wooden elements that were used in the construction process allowed the abode to give off a sense of rugged elegance without compromising on luxury. Accommodations include 4 en-suite bedrooms as well as separate living arrangements for children. The kitchen is spacious and includes state-of-the-art appliances and facilities, but it also represents an intricate part of an open plan area that boasts with its own lounge and stunning fireplace.
Photos by Ulysse Lemerise Bouchard























More Similar Articles Like This
Different Types Of Foundations For Summer Houses and Garden Buildings
Exploring the New World of Luxury Hoteling
Beautiful Apartment in Stockholm for $1 Million
The Superb Maradiva Villas Resort & Spa in Mauritius
Gayton Road Residence by Paxton Locher Studio
Spectacular Luxury House in Sarasota, Florida by DSDG Inc. Architects
Vibrant Wood Tones: Explore a Spectrum of Spray Paint Colors!
Stunning Sustainable Home in Costa Rica by SPG Architects