The Monasterios House is a complex project located in “Los Monasterios” residential area, in Valencia, Spain. It was completed in 2012 by Antonio Altarriba Comes. Situated in a high position, everything in the area can be viewed.
This house is a particular one because of its details emerged from the mountainous zone, appearing like a bunch of stone volumes.
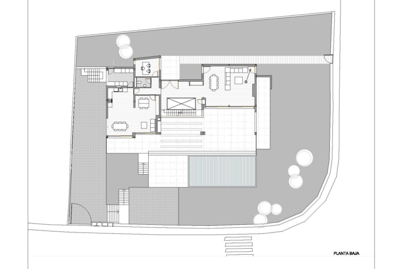
The highest spot of the residence is the north-east corner where the main entrance of the plot is situated. A special element consists in the contrast between the north façade and the main entrance, because while the north façade presents massive and tectonic elements, the entrance hall is much lit.
The entrance hall is actually a triple-height space,where the staircase found its perfect place, also acting like the virtual axis of the house, and being the link between the existing three floors.
You would never expect to find in the basement a guest bedroom with personal bathroom, a large playroom, a cinema room, a wine cellar and a garage. We mean, how big could that area be?
Photos by Diego Opazo
















More Similar Articles Like This
Seamlessly Apartment by the Beach by ZZ Architects
Saguaro Palm Springs by Joie de Vivre
How Seattle Lawn Care Service Deals With Overgrown Lawns
Marvelous Anantara Dhigu Resort
Exquisite Crossacres Mansion In Surrey, England
Gayton Road Residence by Paxton Locher Studio
Astonishing El Tovar by the Sea
The Superb Villa Verai on Phuket Island, Thailand