The House in Ferndale is a wonderful, cozy residence located in the suburb of Ferndale in Johannesburg, South Africa. It’s surrounded by vegetation, and due to the glass walls and large windows the outdoors seems to be part of the indoor space. This thing was possible with the help of Nico van der Meulen, the designer of this beautiful family house.
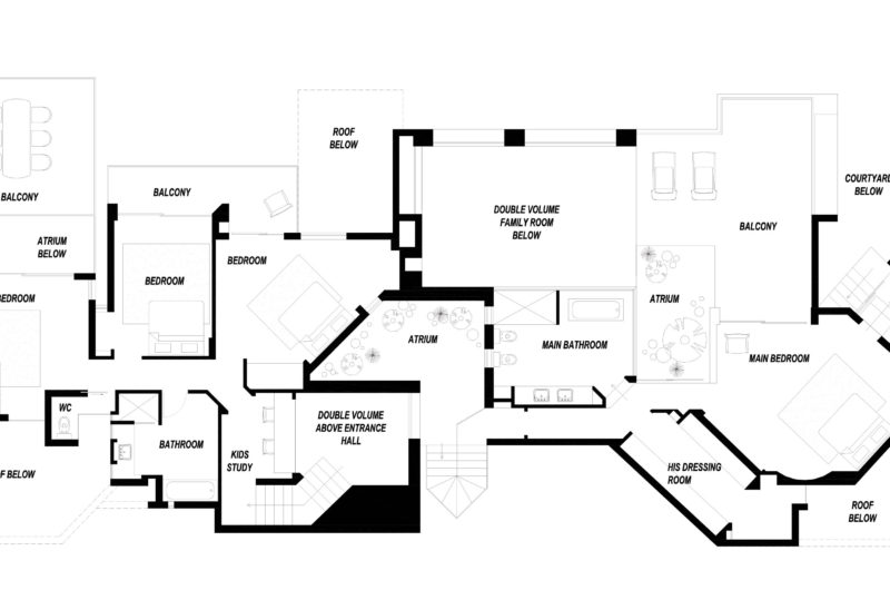
The design has incorporated five atria with a deciduous tree retained in one atrium, acting like an umbrella for the house and a beautiful water feature that helps cooling it during the summer.
A double volume family room with a water feature is incorporated into the living space, the breakfast room acting as a pivot for this area because it’s like a link between the kitchen, family room, dining room and lanai.
The house features four bedrooms all en-suite, three of them, for the kids,being located on the west side of the hall, while the main suite with his and her dressing rooms and bathroom is on the north and east side.
On the second floor, two private studios for the owners’ passion were built just on top of the main suite and gymnasium.
The certain thing here is that this residence is indeed a gorgeous piece.
































More Similar Articles Like This
A Superb Italianate Mansion in California, USA
Beautiful Apartment in Stockholm for $1 Million
Exquisite Crossacres Mansion In Surrey, England
Heavenly Lily Beach Resort & Spa In Huvahendhoo, Maldives
Exploring the New World of Luxury Hoteling
Stunning Banyan Tree Ungasan Bali in Indonesia
Gorgeous And Spacious Home In Sunset Strip
Marvelous Anantara Dhigu Resort