After being abandoned in the 1960s, Chiles Residence by Tonic Design + Construction was re-designed becoming a piece of art in the middle of the nature.
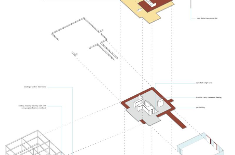
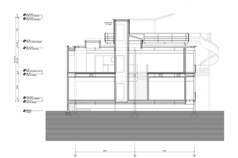
The contemporary 3500-square-foot house in Raleigh, North Carolina was designed and built for art collectors John and Molly Chiles. Besides its enormous dimension, this remarkable home provides both open perches and quiet retreats on its wooded hill site, in form and plan. A spectacular element is the striking spiral staircase that connects the main living level to the roof deck.
The rest of the house just needs to be admired from all its angles.




























More Similar Articles Like This
Saguaro Palm Springs by Joie de Vivre
Spectacular Luxury House in Sarasota, Florida by DSDG Inc. Architects
Loving Luxury at Mardan Palace Resort, Turkey
Santa Barbara Style Home in Paradise Valley, Phoenix
Vibrant Concrete Floor Paint Colors to Elevate Your Space
Behr’s Brilliant Blues: 70 Shades of Stunning Paint Colors
Exquisite Crossacres Mansion In Surrey, England
Plain Geometric Residence Designed by Lidija Dragisic