UN Architectura 2010 project was a two-level house in Rocas de Santo Domingo, Chile. Perfectly combining two bold materials, concrete for the lower level and black painted wood for the upper level, this particular mansion has a unique look.
Having unequal areas, the upper and the lower level create cave-like spaces in the house leaving the outside impression that the concrete level is nature sculptured, rather than designed by architects. The floors are made out of wood on the lower level (in the house, but also outside, on the terrace), while they are of rock on the first level.
Outside the house one can find the garden, the pool and a terrace that has the aspect of a cave. Glass walls bring light into the house during the day, but also diffuse light to the garden and pool side during the night.
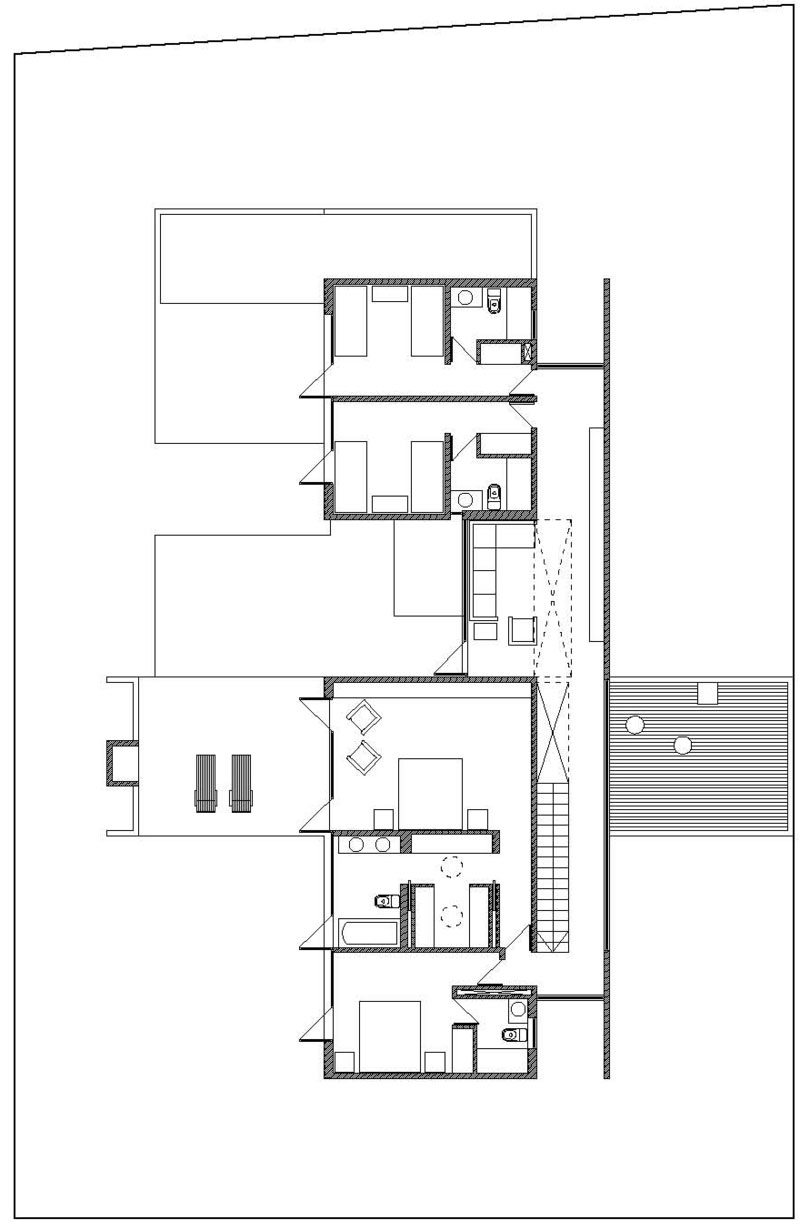
The only typical thing about this house is how the rooms were placed: social areas are on the lower level (open spaces that include the living room, dining place and kitchen) and all the bedrooms and bathrooms are on the upper level, hidden by the black wood that creates the necessary intimacy.



















More Similar Articles Like This
Dreamy Oceanfront Chateau In West Vancouver, Canada
5 Ways to Turn Your Yard Into a Fancy Space
A Superb Italianate Mansion in California, USA
70 Shades of Green: Benjamin Moore’s Vibrant Paint Colors
Marvelous Anantara Dhigu Resort
Amazing Four Seasons Resort Bora Bora
How Seattle Lawn Care Service Deals With Overgrown Lawns
Stunning Banyan Tree Ungasan Bali in Indonesia