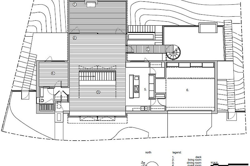
The Sycamore House was designed by Kovac Architects in 2010 for the firm’s founder Michael Kovac. It is located in Pacific Palisades, California, USA and is used as a laboratory for the firm’s research into sustainable architecture.
Because of its green materials and seamless integration environmental system, the house is the first in California to obtain the Platinum Certification from the USGBC LEED for Homes Program.
The house gets its name from the three trees on the site that attracted Kovac to the property. The project is organized and anchored to the site by a 23-foot tall concrete wall.
It is provided with thermal mass that regulates air temperature, natural ventilation and photovoltaic panels that provides all the power needed.
Photos by Lisa Romerein














More Similar Articles Like This
Beach House CN – A Superb Contemporary Home in Peru
Lawn Care Tips, The Basics For Each Season
Shadowed Depths: Vintage-inspired Paint Colors for Dark Basements
Exploring the New World of Luxury Hoteling
Exceptional Coronado Bay Front Estate in California
Secluded Naladhu Island in Maldives
Opulent Mandarin Oriental Hotel in Paris
Extraordinary Constance Halaveli Maldives Resort