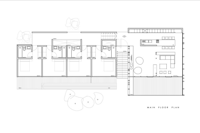
Occupying 3,067 square feet of space, the Swift House can be found in Matanzas, Navidad, Chile, and it was completed in 2009 by WMR Arquitectos. The residence was built for an avid surfer, and so it is located in close proximity to the Matanzas Bay, in a very windy and picturesque area. Its impressive design involves a hotel-like layout that ensures all bedrooms benefit from their own privacy and independence.
Furthermore, the abode was divided into 3 separate volumes that include the private and the public areas. The upper volume shelters the living room, dining room, fire zone and TV, while the ground volume features the gymnasium and several storage facilities. The 3 bedrooms were placed at the middle level, and they all include en-suite bathrooms.
The terraces with their glass railings and wooden benches face conveniently towards the north and thus benefit from much needed shade. The entire abode was built using timber in order to reduce costs and to emphasize a connection with the surrounding environment.
Photos by Sergio Pirrone














More Similar Articles Like This
How Seattle Lawn Care Service Deals With Overgrown Lawns
Lovelli Residence: Mediterranean-Style Dwelling in Bali
Unique Click Clack Hotel In Bogota, Colombia
Heavenly Lily Beach Resort & Spa In Huvahendhoo, Maldives
5 Ways to Turn Your Yard Into a Fancy Space
Behr’s Brilliant Blues: 70 Shades of Stunning Paint Colors
6 Garden and Lawn Tips to Get Ready for Spring
Saguaro Palm Springs by Joie de Vivre