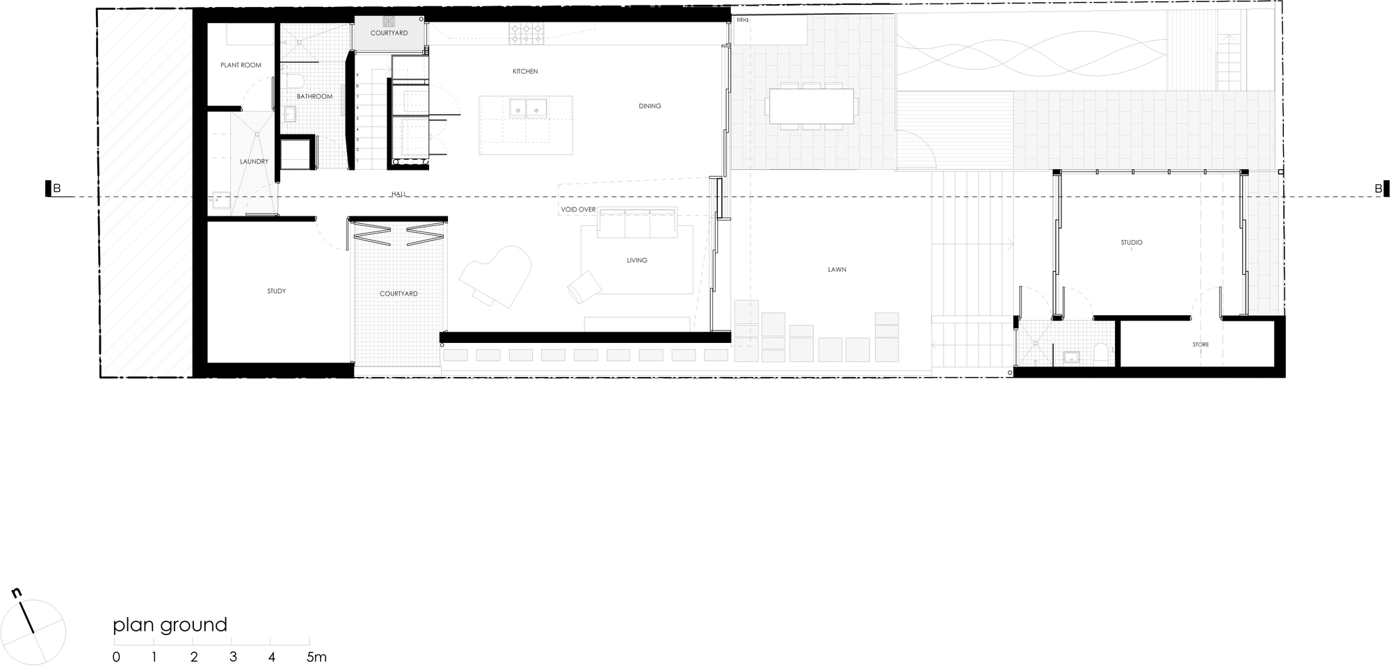
The Green House in Rozelle NSW, Australia was designed by Carterwilliamson Architects and was completed in 2013. The design team consisted of Kellie Beatty, Lisa Merkesteyn and Shaun Carter, while the landscape architects team included Melissa Wilson and Cardno.
The residence boasts 2 levels that are connected via a staircase and ensure a proper separation between the living and private areas. Spacious and welcoming, the Green House was created using a mix of timber, brick and glass mosaic elements that blend seamlessly and ensure a harmonious, clean look. Even though it was built in a highly urbanized area, the abode is surrounded by a generous amount of vegetation thanks to a green courtyard that includes bespoke timber garden boxes.
As far as sustainability is concerned, the Green House was built using natural yet durable materials that will undoubtedly withstand the battering of time, but natural light and cross-ventilation are also key factors that contribute to its energetic independence.

More Similar Articles Like This
Lawn Care Tips, The Basics For Each Season
These Top Tips Will Help You to Turn Your Garden into the Ultimate Glamping Site!
6 Garden and Lawn Tips to Get Ready for Spring
Pure Perfection: Discover the Top White Paint Colors for a Flawless Décor
Vibrant Concrete Floor Paint Colors to Elevate Your Space
Santa Barbara Style Home in Paradise Valley, Phoenix
Superb Luxury Penthouse in Portomaso, Malta
Best paint colors for the living room