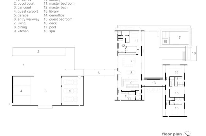
The Levin Residence designed by Ibarra Rosano Design Architects is located in Marana, Arizona and is characterized by simplicity, functionality and “collapsibility”, combining three rectangular volumes.
Its design as well as its interior may be simple but it’s very effective as it gives the impression of a warm, classy and cozy environment that makes one feel the privacy of his/hers own home. The space is well divided and used to its full capacity, everything being nicely put together.
Photos by Bill Timmerman
















More Similar Articles Like This
Outstanding Bodrum Houses in Yalikavak, Turkey
The Sophisticated Casa Villa Flamingo in Spain
Unique Click Clack Hotel In Bogota, Colombia
Secluded Naladhu Island in Maldives
Wonderful Yachting Club Villas at Elounda Beach by Davide Macullo Architects
Saguaro Palm Springs by Joie de Vivre
Seamlessly Apartment by the Beach by ZZ Architects
Plain Geometric Residence Designed by Lidija Dragisic