Flaunting 4,133 square feet of living space, Prodromos And Desi is a contemporary home that is located in Paphos, Cyprus. It was designed by Vardastudio Architects & Designers and was built on a hillside that flaunts a steep drop. Consequently, the entryway was placed at the top level, while three other floors unravel downwards and ensure an increasing amount of privacy towards the bottom floor.
The swimming pool and terrace can be accessed from the kitchen and from the main living and dining areas. Apart from creating considerable challenges for the architects, the unique topography of the site also ensured that the residents would be able to enjoy uninterrupted views of the sea from every room. The thermal mass of the cliff guarantees a cool ambient temperature during the summer as well as a warm one during the winter days, which contributes to the home’s overall level of sustainability. Speaking of sustainability, Prodromos And Desi features high quality insulation complemented by low-energy consuming lighting systems and appliances.
From the architect:
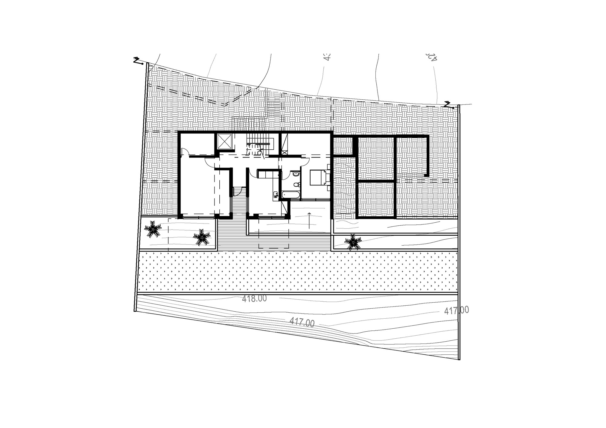
A four-bedroom three-storey house with entry at the top level. The car entrance is from the road level, and a parking area is at the top enclosed with vertical louvers. Cantilevered verandas and a swimming pool extend towards the view to the south.
The project site is located on a hillside with a steep drop down from road level. Aside from the challenge, the topography affords panoramic views to the sea.
The central concept is the configuration of spaces vertically, taking advantage of the morphology of the site for access, privacy and views. Car access and parking is from street level, with the house unraveling in three levels below, with privacy increasing towards the bottom.
The kitchen, living and dining spaces have access to a swimming pool and terrace, both of which cantilever out of the cliff to the horizon. Secondary functions like storage and bathrooms are located at the deepest part of the plan at each level.
The individual volumes of each storey, the parking, the verandas and the swimming pool are outlined clearly from below, whilst from the street the residence has a discreet presence of a single storey. The parking is covered but open, with vertical timber louvers for shading and security.
Looking at the residence from below, the form seems even more dramatic thanks to the extensive use of fair-face concrete. Large concrete building volumes appear to float from the hill side, creating an unexpected composition that appears to defy gravity.
The building is half-submerged in the earth, using the soil to further insulate the interior. The thermal mass from the cliff means the house stays cool during the summer and warm in the winter. Large south facing windows were mandatory to make the most of the views, and the use of louvers and overhangs controls passive solar gains depending on the season.
The building envelope is constructed and insulated to a high standard, to enhance the building’s environmental performance, and all active systems as well as lighting and appliances used were selected for their efficiency.
Architects: Vardastudio Architects & Designers
Location: Paphos, Cyprus
Area: 384.0 sqm
Project Year: 2014
Photographs: Creative Photo Room
Structural Engineering: Michalis Stavrou
Construction: Alexis Panagides















More Similar Articles Like This
Seamlessly Apartment by the Beach by ZZ Architects
These Top Tips Will Help You to Turn Your Garden into the Ultimate Glamping Site!
Exquisite Crossacres Mansion In Surrey, England
Vibrant Wood Tones: Explore a Spectrum of Spray Paint Colors!
Extraordinary Constance Halaveli Maldives Resort
A Superb Italianate Mansion in California, USA
6 Garden and Lawn Tips to Get Ready for Spring
Superb Luxury Penthouse in Portomaso, Malta