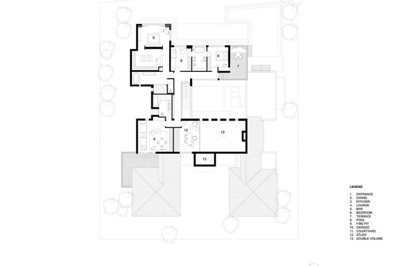
These stunning interiors were designed by Antoni Associate for a lovely contemporary home by architect Gardiol Bergenthuin. The project was carried out for a young couple who wanted to swap their hectic city life with a more relaxed lifestyle in the countryside, only 30 minutes away from Cape Town, South Africa.
The residence is called Pearl Valley 334 and it is situated in the exclusive Pearl Valley Golf Estate near Paarl. The owners wanted a home that would have a “barefoot luxury” feel, with natural materials throughout. The entire project revolves around a central courtyard with reflective pond and beautiful landscaping.
Photos by: Adam Letch













More Similar Articles Like This
Shadowed Depths: Vintage-inspired Paint Colors for Dark Basements
Pure Perfection: Discover the Top White Paint Colors for a Flawless Décor
Different Types Of Foundations For Summer Houses and Garden Buildings
Behr’s Brilliant Blues: 70 Shades of Stunning Paint Colors
Exploring the New World of Luxury Hoteling
Exquisite Crossacres Mansion In Surrey, England
How Seattle Lawn Care Service Deals With Overgrown Lawns
Beautiful Apartment in Stockholm for $1 Million