The Hewlett House located in Sydney, Australia was designed by MPR Design Group. It’s a home with complex forms and intricate details, specially created for a modern family with three children.
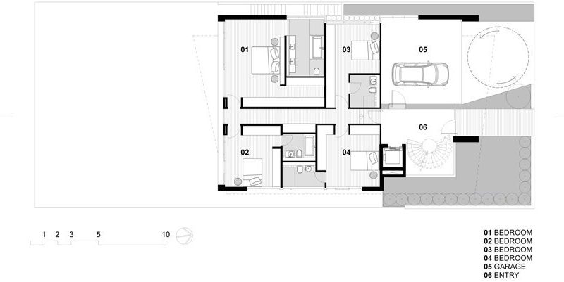
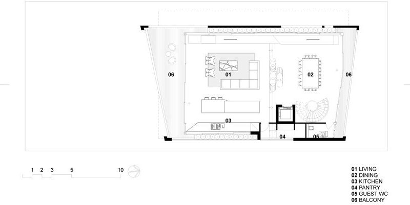
Because it is located on the northern flank of the Bronte gully, it provides views of the Bronte beach. The upper floor offers better views, so in response to that, the living spaces were placed here. Due to the fact that the middle floor is more private and secluded, here the bedrooms have found their spot. The garden and the swimming pool are at the lowest level, as it was naturally to be.
This home has a particular shape but is as functional and comfortable as any other normal house is.
Photos by John Gollings















More Similar Articles Like This
Marvelous Anantara Dhigu Resort
The JKC1 House in Bukit Timah, Singapore
Vibrant Concrete Floor Paint Colors to Elevate Your Space
Wonderful Yachting Club Villas at Elounda Beach by Davide Macullo Architects
Spectacular Luxury House in Sarasota, Florida by DSDG Inc. Architects
Spectacular Rooftop Apartment by Innocad
Astonishing El Tovar by the Sea
Opulent Mandarin Oriental Hotel in Paris