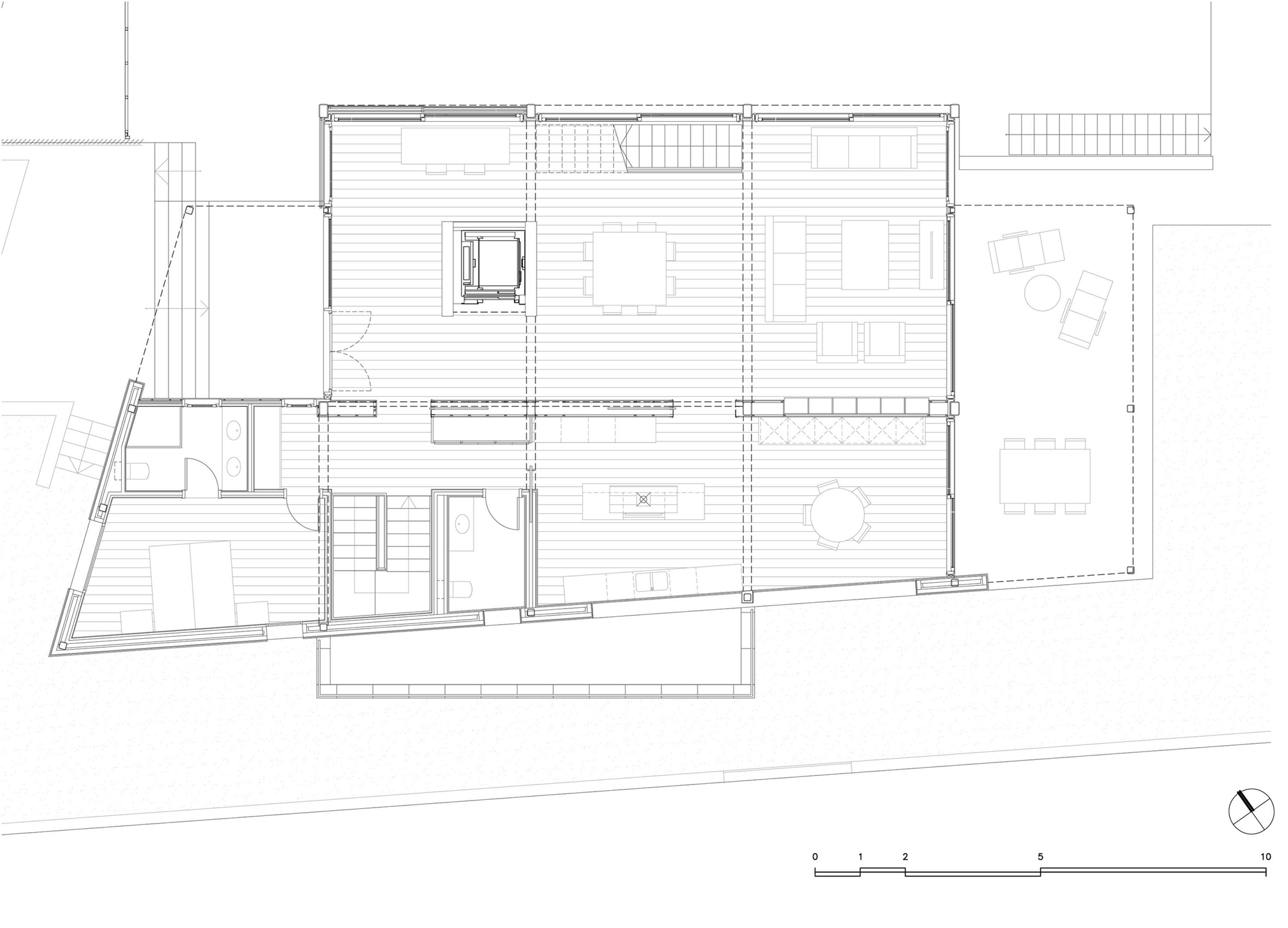
Featuring four stories as well as 5,812 square feet of living space, the P House is located in Barcelona, Spain, and it was completed in 2011 by Artigas Arquitectes. It features a relatively simple exterior design complemented by spacious and welcoming interior arrangements. The primary floor is the ground floor, and it incorporates the living room, a workspace and an interior staircase with “floating” wooden steps that leads the way to the upper levels.
The kitchen is somewhat minimalistic with its white cabinets, white walls and wooden dining table accompanied by white chairs. The ground floor is connected to a small patio that features a wooden table and a few wooden chairs, while the first level benefits from access to a terrace. The property also includes a swimming pool that ensures refreshing relaxation sessions for the owners and their guests.
The house successfully adapts to the plot, and each story has a unique character and functionality that is in part dictated by the conditions of the site. The connection between indoor and outdoor spaces is controlled via sliding wooden doors, which gives the owner the power to play with the house’s permeability. Closed towards the street and open towards the backyard, the house offers an excellent balance of privacy and openness.
From the architect:
Artigas Arquitectes searched of the distinction and singularity of this house, located in Barcelona, that arises from the idea of creating an ideal habitable space in the interior of a pure and light volume, which has a regular shape and is permeable to the excellent natural conditions and location.
The volume shows lightness thanks to its structure on the façade, a slender regular-metal structure that is in harmony with the warm and permeable façade enclosures.
The homogeneous enclosures establish a direct and easy relation between the interior and the exterior of the house. This is done through a big glass façade modulated and filtered with big sliding wooden doors, which protect and control the likelihood of permeability.
The rectangular volume of geometric simplicity and marked edges is materialized in a four-story construction, providing each story with a personalized definition according to its use and the conditions of the site. The lower ground floor is anchored to the land and fixes the best position for the house. This is achieved by following one of the alignments being facing excellent views and south side.
The ground floor, which is the main floor of the building, extends as far as the two walls that are parallel to the street. This results in the house being off the street and open towards the rest of the plot, which represents the concept of including the basement to the total surface of the site.
This house adapts to the land and the excellent conditions. The higher floors recover the regularity and modularity of the construction, having a large terrace perimeter on the first floor. The second floor becomes a pleasant viewpoint over the wide views of the area.
Architects In Charge: Albert Artigas, Ester Fortuny, Judit Onsès, Albert Ortiz
Area: 540.0 sqm
Year: 2011
Photographs: Lluís Sans
Interior Designer: Agustí Schilt
Woodwork: Fitó i Fills S.A.
Installations: Sol-i-clima, Vaporetto iluminación S.A














More Similar Articles Like This
Beautiful Apartment in Stockholm for $1 Million
Green Gables Home In Fairfield, Connecticut, United States
The Superb Villa Verai on Phuket Island, Thailand
10 Different Types of Blue Paint Colors
Loving Luxury at Mardan Palace Resort, Turkey
Secluded Naladhu Island in Maldives
How Seattle Lawn Care Service Deals With Overgrown Lawns
These Top Tips Will Help You to Turn Your Garden into the Ultimate Glamping Site!