The 4 Views residence can be found in Winchester, England, and it was finished in 2014 by a company called AR Design Studio. This welcoming abode was created for a family who lost one of its members, which is why it was designed to bring a sense of peace and encourage spiritual healing. The owners allowed the architects to envision and create the design without restrictions, but they did ask for a garden to be present within the abode.
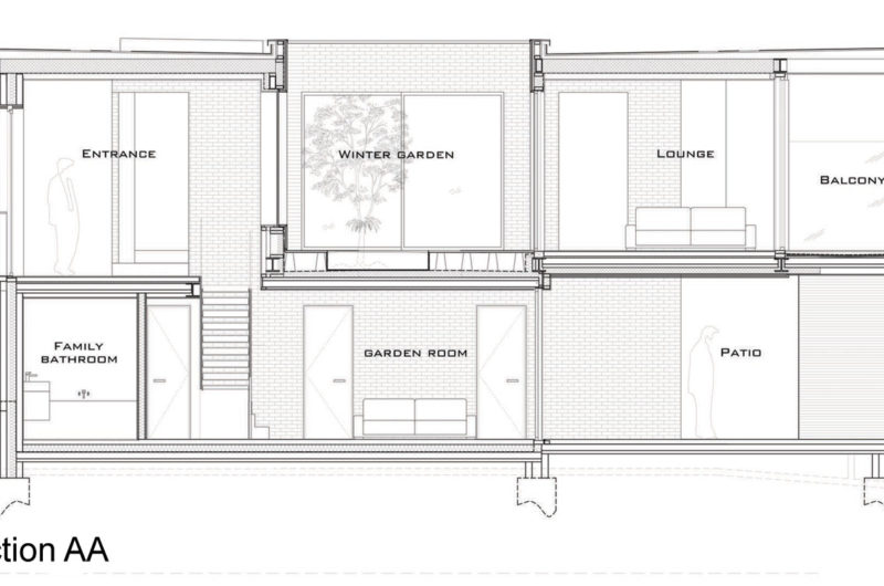
The solution came in the form of 4 interlocking boxes, which made way for a central Zen garden at their core. This garden features a single olive tree that provides a direct link with nature while encouraging meditation and tranquility. Since the garden symbolizes introspection and self-knowing, the 3 expansive panoramas of the South Downs that can be admired from multiple rooms stimulate optimism and thoughts of the future.
By implementing skylights and large windows, the architects ensured that the top level of the home would be flooded with natural light and would boast a constant connection with the elements. By contrast, the ground level features a darker, more private theme and benefits from peaceful views of the garden. The balcony, patio and courtyard offer fantastic opportunities for entertainment and socialization that can be enjoyed in full even during unwelcoming weather conditions.
From the AR Design Studio:
Situated in a prominent location overlooking the city of Winchester and its beautiful surrounding countryside stands Four Views. This striking upside-down build contrasts with its conventional neighbours, displaying a flat overhanging roof, dark grey brick, cedar cladding and grey aluminium framed windows.
In 2011, we were approached by a couple wishing to build a new house. They wanted a life experience to immerse themselves in, having recently lost a daughter; a project that would give them a positive focus and a fresh start for them and their family.
Taking responsibility for their brief very seriously, research into building a house that could help them move forward, heal and bring them happiness began. Through extensive research we found a wealth of information on the connection between good architecture and its positive effects on restoring health. We were given a ‘free hand’ with its design, around a wish for a garden within.
The conceptual drive behind his house was the principle of the 3 N’s: Nature, Natural light and Natural air. The form of the replacement house is defined by four interlocking boxes, the enclosed space at their centre forms a ‘Zen’ garden, with a single olive tree at its heart. This simple layout became the foundation on which the principles of the 3N’s could be built, allowing them to be incorporated into all aspects of the design.
A connection to nature has long been believed as good for one’s body and soul. This house connects with nature through three stunning, far reaching views of the South Downs. The long views inspiring the couple to look forward to the future, the courtyard giving space for inward private and reflective times. Subsequently, the house has become known as 4 Views.
The extensive glazing to walls, roof lights and open central garden allow natural light to flood the upper floor, giving a generous feeling of space. The skylights create an enchanting backdrop to the interior, the spaces constantly alive with light and shadow from passing clouds, providing a stimulating continual connection to the elements. Large sliding panels of glass to the primary elevation and courtyard ensure natural ventilation and also a free flow of natural fresh air.
The bedrooms and snug are intentionally darker, giving a cosier retreat downstairs. Views from here frame the garden, contrasting the extended views from the first floor and in turn emphasising the ground floor as a private retreat for the family.
The courtyard, large balcony and huge covered patio are all designed to offer healthy outdoor living options regardless of weather.
The materials and fittings are simple and natural to evoke and promote a sense of calm. The cedar cladding cocoons the house internally and externally, and the delicate scent from this creates a beautiful tranquil place to live in.
Photos by Martin Gardner

















More Similar Articles Like This
These Top Tips Will Help You to Turn Your Garden into the Ultimate Glamping Site!
Spectacular Luxury House in Sarasota, Florida by DSDG Inc. Architects
The Superb Maradiva Villas Resort & Spa in Mauritius
Benjamin Moore Exterior Paint: Vibrant Shades for a Striking Home
Saguaro Palm Springs by Joie de Vivre
Plain Geometric Residence Designed by Lidija Dragisic
Vibrant Wood Tones: Explore a Spectrum of Spray Paint Colors!
The Superb Villa Verai on Phuket Island, Thailand