The Northwest Harbor home was designed by Bates Masi Architects and was constructed in 2013 on a lot that is found close to freshwater wetlands in East Hampton, New York, USA. As you can probably imagine, building a house so close to wetlands is a challenge, particularly when it comes to environmental issues and local building restrictions. The residence flaunts a single story and features 1,900 square feet of living space.
Its main level is raised eight feet above the ground because of flooding concerns. Inside, we find a generous selection of modern facilities and amenities that support a comfortable lifestyle to say the least. The windows as well as the sliding glass doors fade the limits between the indoor and outdoor spaces and make sure that all rooms benefit from an ample amount of natural light.
The living room boasts comfortable chairs, a sofa, a small coffee table and a fireplace. It represents the perfect spot to enjoy a hot cup of coffee or tea while reading a good book or taking in the wonderful views of the surrounding environment. The kitchen is equipped with state-of-the-art appliances, while the dining room features a wooden table for six.
From the architect:
Straddling freshwater wetlands and a tidal estuary just six feet above sea level, this house’s site demands extraordinary sensitivity to environmental concerns. Local zoning restricts the structure’s maximum coverage and proximity to wetlands areas, while Fema requirements set the first floor structure above the base flood elevation. The house’s basic massing is therefore predetermined, limited to a one story, 1,900 square foot design, raised eight feet above the ground. The spaces within this envelope are arranged, articulated, and fenestrated based on an innovative structural system that infuses the house’s inner areas with light and circulating air.
Whereas most waterfront construction uses pilings to establish an artificial ground plane upon which a conventional house is built, in this project these structural members are integral: 16 exposed, glue-laminated piles stake out the enclosing walls for each of the three bedrooms and extend continuously from the ground through the roof.
The spaces between these piles house “utility” functions: closet, desk, laundry, pantry, and shower compartment. In addition to these conventional utilities, three vertical voids are opened between the piles to serve the spaces around them.
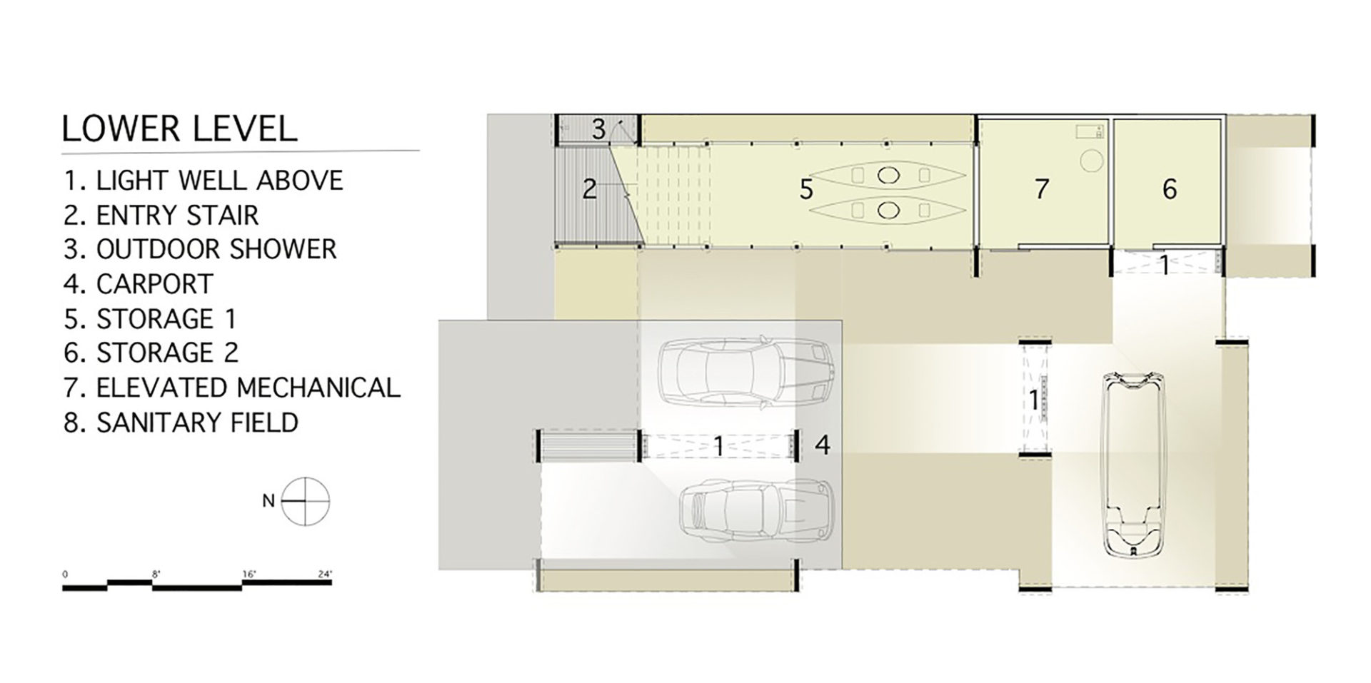
Without occupying any of the limited allowed coverage, these open areas add considerable value by improving the house’s interior environmental quality and diminishing its impact on the local environment. The benefit is threefold: each opening draws light though the interior spaces to the carport below, conducts rainwater from the roof deck to the ground via integral downspouts carved into the piles, and ventilates by siphoning air through the middle of the structure.
At the roof the projecting piles divide the space between a deck directly coinciding with the living areas below and a modular planting system installed above each bedroom to reduce runoff. The projecting piles also serve as supports for photovoltaics that power geothermal pumps, utilizing the abundance of high ground water to heat and cool the house. At the ground level, the space below the house is utilized for parking and storage to minimize the footprint on the site.
By allowing voids to permeate through the house, the owners have multiple visual connections to the landscape from below, within and above the house, encouraging a sense of place.
· Architects: Bates Masi Architects
· Location: East Hampton, United States
· Structural Engineer: Steven L. Maresca, Hampton Bays, NY
· Area: 1895.0 ft2
· Project Year: 2013











More Similar Articles Like This
Tips for Choosing the Right Blue Paint Color for Your Dining Room
Wonderful Yachting Club Villas at Elounda Beach by Davide Macullo Architects
Vibrant Concrete Floor Paint Colors to Elevate Your Space
10 Different Types of Blue Paint Colors
Pure Perfection: Discover the Top White Paint Colors for a Flawless Décor
Spectacular Rooftop Apartment by Innocad
Beach House CN – A Superb Contemporary Home in Peru
Best paint colors for the living room