What we have here is perhaps one of the most versatile buildings in Hong Kong. The WING loft was designed by Laboratory for Explorative Architecture & Design and is located at the top of a spacious waterfront industrial complex. It flaunts 2,540 square feet of living space and includes a selection of modern facilities that allow it to host various events, performances, exhibitions and dancing sessions. The former industrial warehouse comprises two wings, both of which open up to a sizeable terrace.
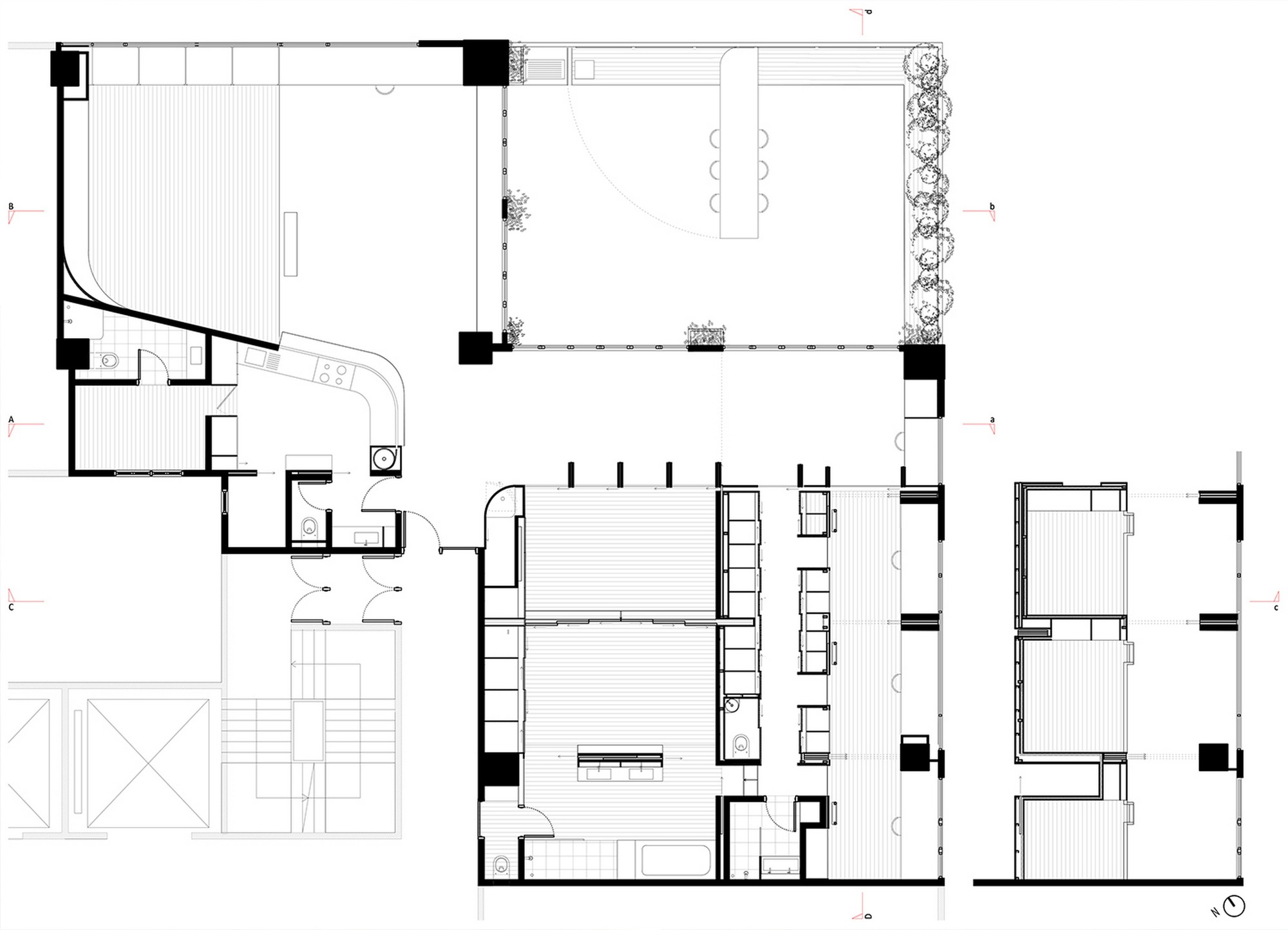
The Left wing contains the first performance areas as well as a brass volume that incorporates the bar and a kitchen.
The right wing features something called ArtWall, which measures 32 feet and boasts graphics that honor the dynamic movement of performances. The wooden wall is foldable and acts as a lantern-like divider between a few office spaces and a second performance stage. The third performance stage is encircled by greenery, features gorgeous panoramas of the Chai Wan neighborhood and is located at the rooftop.
From the architect:
Hong Kong’s neighbourhood Chai Wan is the next up-and-coming cultural hub on the island. As industrial activities are slowly disappearing from the area, the rough post-industrial urban fabric leaves behind a unique range of spaces and places that form the backdrop for an innovative creative scene. WING is the latest addition to what Chai Wan has on offer. Located on the top of a large waterfront industrial complex, this spacious loft / performance space is a versatile and flexible venue for contemporary dance, exhibitions, performances and events, which simultaneously allows for an instant conversion into office spaces and/or residence. By packing this multifaceted programme in a relatively small area in a derelict industrial warehouse, the project voices a strong critique to Hong Kong’s extreme housing situation, lack of cultural facilities, and its and negligence of its industrial heritage.
The venue consists of two wings that open up onto a large terrace. The left wing contains a performance area with a brass volume as a backdrop that houses kitchen / bar facilities. The right wing is characterised by the ArtWall, a ten meter long, foldable wooden artwork which graphics symbolize the dynamic motion of the performances taking place. The wall operates as a lantern-like space divider between the second performance stage and offices hidden behind it, and the meeting area in front. The rooftop houses the third performance stage surrounded by green and with a stunning view of Chai Wan.
Hidden where one would least expect it WING offers Hong Kong a rare place for creative expression. Hyper-flexibility and spatial efficiency are pushed to the maximum to allow the project’s ambitious programme. Careful selection of materials, geometries, craft and techniques gives the space its unique, warm and charismatic identity. With frequent events scheduled throughout the year WING aims to facilitate and stimulate Hong Kong’s creativity.an Der Heijden
Architects: Laboratory for Explorative Architecture & Design
Location: Chai Wan Industrial City Phase 2, 70 Wing Tai Road, Chai Wan, Hong Kong
Design Team: Kristof Crolla, Julien Klisz
Area: 236.0 sqm
Photographs: Dennis Lo Designs, Ramon Van Der Heijden
Concept Design: LEAD i.c.w. Dhooge & Meganck Ingenieur-Architecten BVBA
General Contractor: Yat Sing Decoration Engineering Ltd
Specialist Contractor Fins: E T Engineering Ltd
















More Similar Articles Like This
Stunning Banyan Tree Ungasan Bali in Indonesia
Benjamin Moore Exterior Paint: Vibrant Shades for a Striking Home
70 Shades of Green: Benjamin Moore’s Vibrant Paint Colors
Beach House CN – A Superb Contemporary Home in Peru
Loving Luxury at Mardan Palace Resort, Turkey
Stunning Sustainable Home in Costa Rica by SPG Architects
Tips for Choosing the Right Blue Paint Color for Your Dining Room
Exceptional Coronado Bay Front Estate in California