Jesolo Lido Pool Villa is a contemporary home that was completed in 2013 by JM Architecture. The house covers an area of 3,445 square feet and is located in Lido, Venice, Italy.
This is a technologically contemporary building with energy-saving high standards that guarantee maximum comfort and almost zero costs throughout the four seasons, anti-seismic system that also avoids thermal bridges, argon-gas insulated glass facades, 10 kw of photovoltaic panels installed on the roof and interior/exterior led light fixtures.
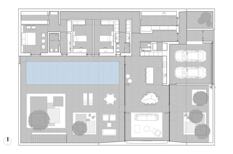
Because of the small sized plot, the architects had to concentrate on leaving as much open space as possible, so they equipped the indoor living area with transparent sides that open towards two distinct-sized patios: the large one to the west that features a long swimming pool and two planted square inserts with an olive tree, and the smaller patio that also features two planted inserts with another olive tree to counterbalance the other side.





















More Similar Articles Like This
Benjamin Moore Exterior Paint: Vibrant Shades for a Striking Home
Gayton Road Residence by Paxton Locher Studio
Beautiful Apartment in Stockholm for $1 Million
Vibrant Wood Tones: Explore a Spectrum of Spray Paint Colors!
Saguaro Palm Springs by Joie de Vivre
Shadowed Depths: Vintage-inspired Paint Colors for Dark Basements
Stunning Sustainable Home in Costa Rica by SPG Architects
Plain Geometric Residence Designed by Lidija Dragisic