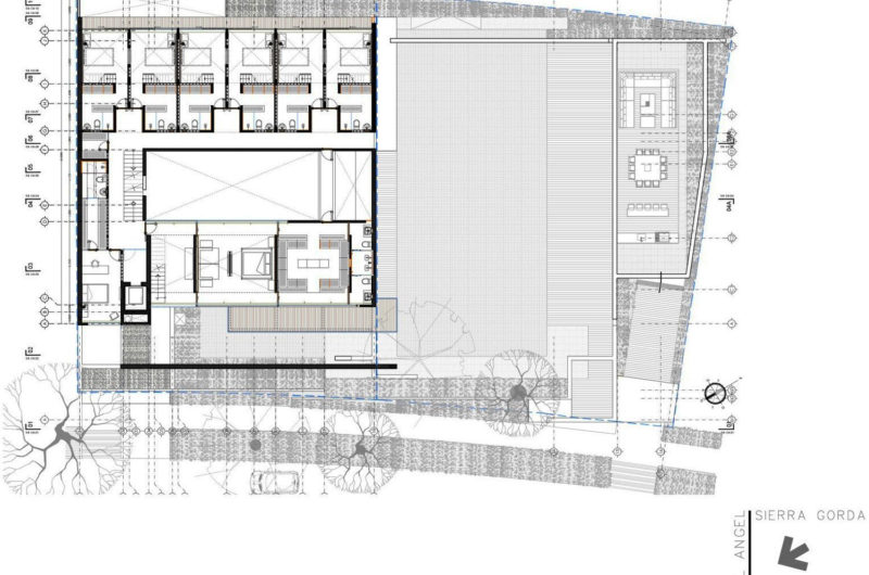
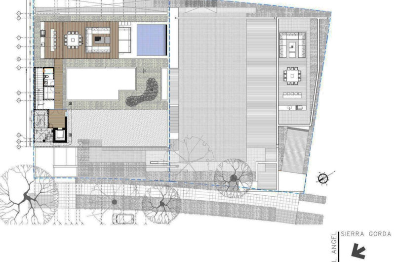
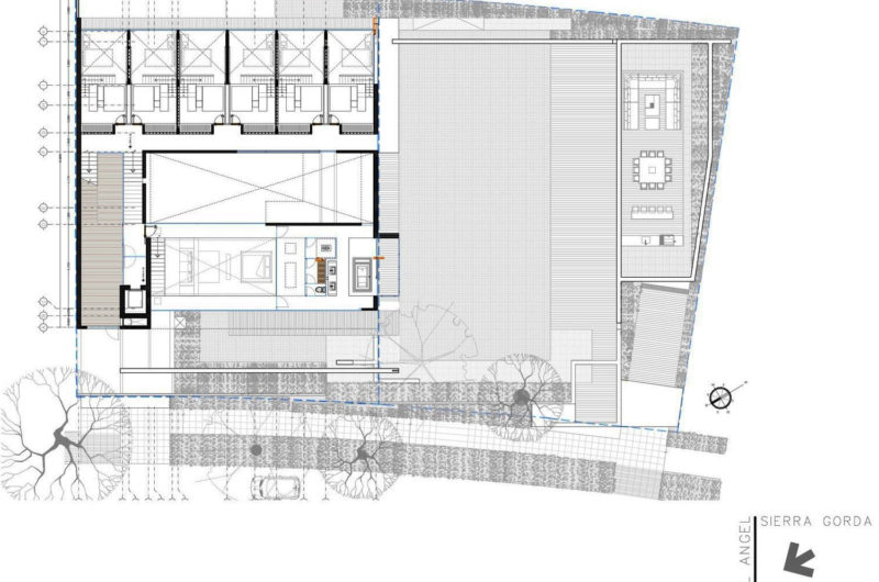
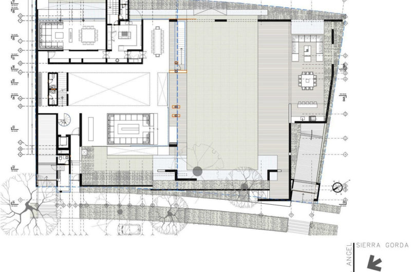
In 2011, architect Miguel Angel Aragonés designed a house to create a relationship between the space and the sun. Or, how he puts it, the sun is an important tool for an architect and this lively presence must be captured, seduced and manipulated to become useful to a house during summertime or winter.
The sun can be found in every aspect of a house. It is not only about light, but also about the temperature of the house. In Mexico, this aspect regarding the connection between sunlight and warmth is visible when it comes to the temperature differences from a southern house to a western one.
Another feature of the light given by the sun is that it splits into different colors. The architect can use all of the shades the sunlight reflects to paint a house in tones of yellow, blue, red… The walls become canvases for the changing colors from dusk to dawn.
Photos by Joe Fletcher


























More Similar Articles Like This
70 Shades of Green: Benjamin Moore’s Vibrant Paint Colors
Unique Click Clack Hotel In Bogota, Colombia
Santa Barbara Style Home in Paradise Valley, Phoenix
Different Types Of Foundations For Summer Houses and Garden Buildings
Superb Luxury Penthouse in Portomaso, Malta
Loving Luxury at Mardan Palace Resort, Turkey
Gayton Road Residence by Paxton Locher Studio
Plain Geometric Residence Designed by Lidija Dragisic