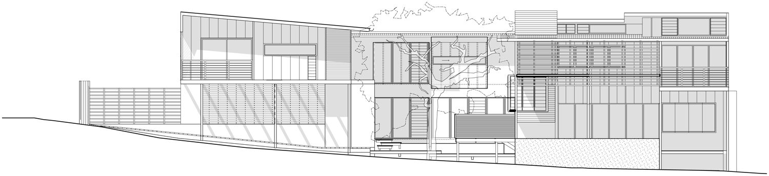
We’re sure that most of you will agree that a perfect home needs to be spacious, beautifully furnished and tastefully decorated. However, a home’s location also plays a key role in its overall appeal. This is why beach houses are so popular. They are built in close proximity to the sea and allow their residents to enjoy the gentle caress of the breeze on a daily basis. The Marcus Beach House is a fine example. It was designed by a firm named BARK Design Architects, and it can be found in Queensland, Australia.
It flaunts 2,798 square feet of living space (extensions included), and it includes a main pavilion that houses its primary living spaces as well as a gorgeous master bedroom that can be accessed via a polycarbonate clad stair tower. What makes this home special apart from its luxurious accommodation options is the fact that it boasts a certain degree of self-sustainability.
Thanks to its carefully positioned doors and windows, the residence welcomes the breeze while a selection of roof overhangs block extra sunlight thus protecting the living areas from overheating. Furthermore, glazing ensures that artificial lighting is scarcely needed, but we should also mention the fact that no air conditioning systems were installed throughout the abode, probably because it does such a fine job in keeping cool all by itself.




















More Similar Articles Like This
Exploring the New World of Luxury Hoteling
These Top Tips Will Help You to Turn Your Garden into the Ultimate Glamping Site!
Saguaro Palm Springs by Joie de Vivre
Superb Luxury Penthouse in Portomaso, Malta
Extraordinary Constance Halaveli Maldives Resort
Dreamy Oceanfront Chateau In West Vancouver, Canada
Exceptional Coronado Bay Front Estate in California
Gorgeous And Spacious Home In Sunset Strip