The 2013 renovation of the Stonington Residence culminated into a splendid, contemporary abode that amazes with a combination of natural materials and a modern design. The initial house boasts a heritage that dates all the way back to World War II, and it was designed by John Lincoln –a former Rhode Island School of Design professor of architecture.
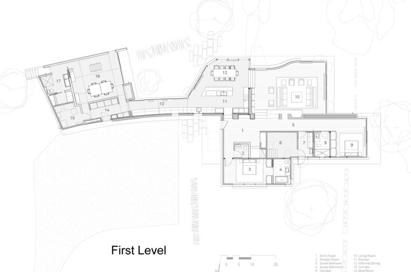
The new version of the abode was sketched out to be in harmony with its original layout. The initial home had its 3 bathrooms, 5 bedrooms, a laboratory and a library organized along a special granite wall that is present throughout the house’s center. However, since the main bedrooms needed to benefit from utmost privacy, the architects decided to expand the house by adding a second volume.
The interior amenities include comfortable sofas, fireplaces, flat screen TVs and many more. The fully equipped kitchen flaunts modern appliances as well as a small table for six. See it all for yourself in the following images!
Renovated by Joeb Moore & Partners in 2013.
Photos by David Sundberg | Esto















More Similar Articles Like This
Extraordinary Constance Halaveli Maldives Resort
Vibrant Wood Tones: Explore a Spectrum of Spray Paint Colors!
Gorgeous And Spacious Home In Sunset Strip
5 Ways to Turn Your Yard Into a Fancy Space
Lovelli Residence: Mediterranean-Style Dwelling in Bali
Exquisite Crossacres Mansion In Surrey, England
Different Types Of Foundations For Summer Houses and Garden Buildings
These Top Tips Will Help You to Turn Your Garden into the Ultimate Glamping Site!