House L is an architectural project completed by Grosfeld van der Velde Architecten in 2012. It is located in Oosterhout, The Netherlands, at the rear of the plot. Due to the fact that the ground floor was raised to the ground level and
because of the large windows, the rural landscape can be fully viewed and the outer space can be experienced to the full. The large roof projection came as a complement of the floor to ceiling windows, in order to prevent too much light entering.
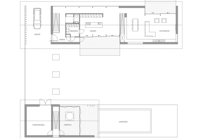
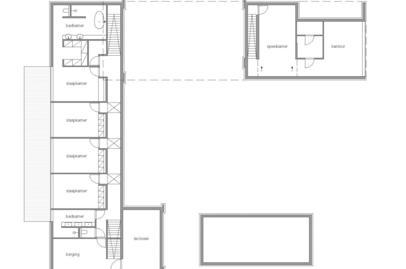
The ground floor is a single open floor that connects beautifully with the outdoor space and includes the primary living functions with all the rooms that flow seamlessly into one another. The basement area includes the office and the playroom.
The exterior swimming pool is the place for relaxation, where the owners love to spend a lazy summer day.
Photos by Marcel Briaire, Rene de Wit













More Similar Articles Like This
Lawn Care Tips, The Basics For Each SeasonÂ
6 Garden and Lawn Tips to Get Ready for Spring
Dreamy Oceanfront Chateau In West Vancouver, Canada
These Top Tips Will Help You to Turn Your Garden into the Ultimate Glamping Site!
The Superb Villa Verai on Phuket Island, Thailand
Wonderful Yachting Club Villas at Elounda Beach by Davide Macullo Architects
Exquisite Crossacres Mansion In Surrey, England
Pure Perfection: Discover the Top White Paint Colors for a Flawless Décor