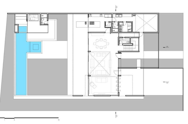
Linhares Dias House was designed by DOMO Arquitetos in Brasilia, Brasil. Close to the Paranoa Lake, the two-story home has a portico-style configuration, with one large roof connecting all spaces and two side walls delimitating the length of the building. The said walls also shade part of the exterior spaces and even continue upwards beyond the roof.
For a little dynamism the architects chose to place the internal spaces in alternating advanced and retreated positions. The living room is the most spacious area of all, flaunting a double-height ceiling and seamlessly opening to the outdoor spaces. There is also an open space on the roof from where one can freely admire the beautiful views.
Photos by Joana França




















More Similar Articles Like This
A Superb Italianate Mansion in California, USA
Beach House CN – A Superb Contemporary Home in Peru
Heavenly Lily Beach Resort & Spa In Huvahendhoo, Maldives
Opulent Mandarin Oriental Hotel in Paris
Stunning Sustainable Home in Costa Rica by SPG Architects
6 Garden and Lawn Tips to Get Ready for Spring
Tips for Choosing the Right Blue Paint Color for Your Dining Room
Spectacular Luxury House in Sarasota, Florida by DSDG Inc. Architects