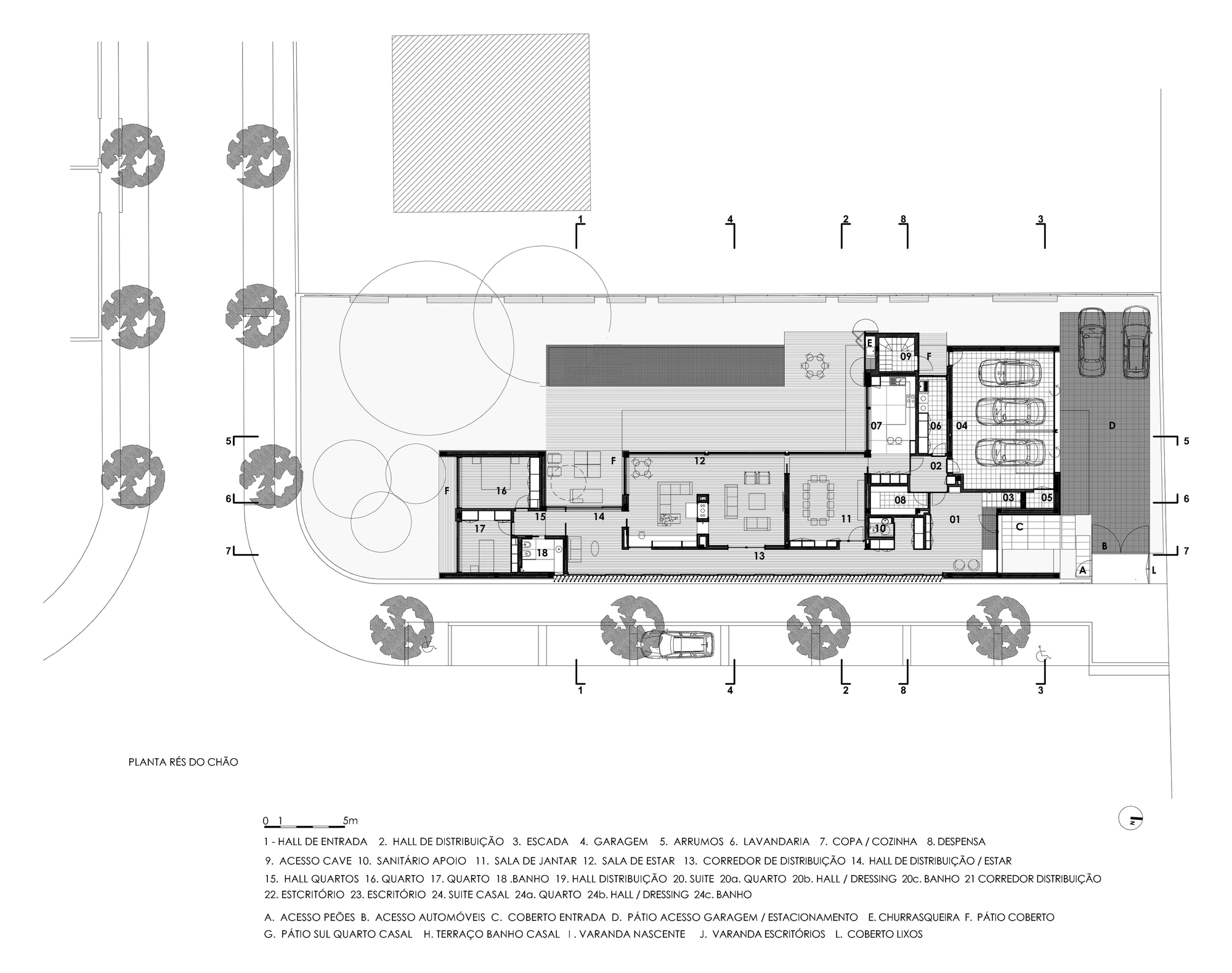
The impressive house that we’re about to present was completed in 2013 in Santo Tirso, Portugal by a company called Atelier d’Arquitectura J. A. Lopes da Costa. Dubbed JD House, it flaunts an elongated and narrow design based on two different structures that overlap horizontally. The residence is entered from the ground floor, which features a higher degree of transparency when compared to the upper one.
Apart from the entrance hall, the ground floor also comprises the kitchen, the garage, the laundry area and a toilet. The dining room and the living room were placed at the western side of the ground level in order to make sure that they would benefit from outdoor access. The southern part incorporates private living areas such as two bedrooms and a bathroom that can also be used by disabled individuals.
The first floor is occupied by the master suite to the south and another suite that opens up to a western garden. The space between the suites is filled by a pair of offices that have their own west-facing balconies.













More Similar Articles Like This
Dreamy Oceanfront Chateau In West Vancouver, Canada
10 Different Types of Blue Paint Colors
Amazing Four Seasons Resort Bora Bora
Boracay Resort & Spa in the Fascinating Philippines
The Superb Villa Verai on Phuket Island, Thailand
Vibrant Concrete Floor Paint Colors to Elevate Your Space
Santa Barbara Style Home in Paradise Valley, Phoenix
Opulent Mandarin Oriental Hotel in Paris