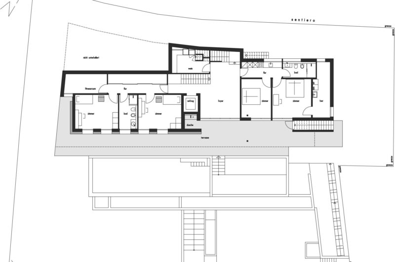
Perched upon a hill overlooking a tranquil lake in Vernate, Switzerland, the spectacular House Lombardo was sketched out by Philipp Architekten. The house features a white, minimalistic appearance on the outside, but on the inside, things are a little bit different.
Even though the main living areas feature a predominant shade of white, they also boast super wooden furnishings as well as lovely houseplants for an extra touch of contrast and liveliness. The bedrooms and bathrooms feature all sorts of high-end amenities and ensure an appropriate amount of privacy, while the main living room acts as an open space boasting never-ending views of the nearby lake and not-so-near mountains.
With a perfect mix of comfort, elegance and fine taste, the House Lombardo is surely one of the most amazing abodes in the world. Luckily for you, you can see it all for yourself in the following pictures.
Photos by Udo Geisler






















More Similar Articles Like This
Loving Luxury at Mardan Palace Resort, Turkey
Extraordinary Constance Halaveli Maldives Resort
Stunning Sustainable Home in Costa Rica by SPG Architects
The Sophisticated Casa Villa Flamingo in Spain
Amazing Four Seasons Resort Bora Bora
Gayton Road Residence by Paxton Locher Studio
Dreamy Oceanfront Chateau In West Vancouver, Canada
Tips for Choosing the Right Blue Paint Color for Your Dining Room