Sketched out by Reyes Ríos + Larraín Arquitectos, the GG-15 House is located in Merida, Yucatan, Mexico, and it features 1,614 square feet of living space. It was built for a couple who wanted to enjoy a simple and comfortable lifestyle. Its finishes list comprises aluminum and painted steel elements for the windows, semi hardwood stairs, bamboo ceilings and natural stucco that covers the interior walls and the facade.
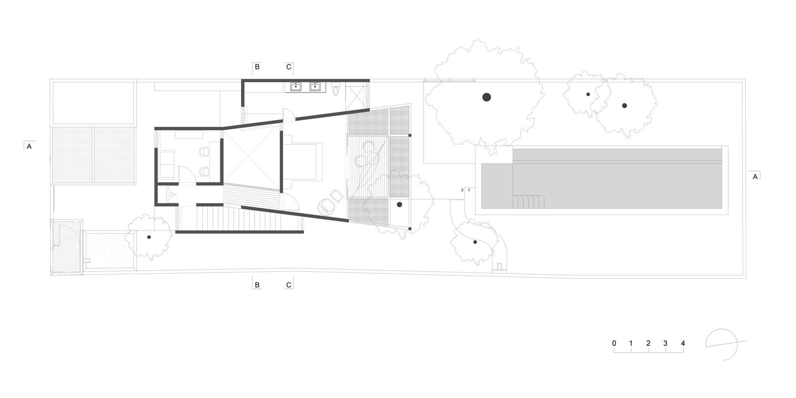
The ground floor incorporates a double height living room, a kitchen/dining room, a guest room with a bathroom, a covered garage, a service area and a covered terrace. Upstairs, the residents enjoy access to a study and a master bedroom with its own terrace and dressing room.
From the architect:
150m² house on two levels located in Mérida, Yucatán, located in a regular plot of eleven by forty meters. This house was designed for a couple, which was in search of a simpler life and practice. The ground floor consists of kitchen-dining room and double height living room, guest room with bathroom, covered terrace overlooking the garden; service area and covered garage. Upstairs includes a study and the master bedroom with dressing room and terrace.
Two major endemic trees were preserved and incorporated as elements of articulation between the house and the rest of the garden. The distribution of the main areas is oriented towards connection with the vegetation area. The terraces on two levels work at the same time as transition spaces with natural light and heat gain buffer.
The architectural plan reflects its status of opening the spaces to the favorable orientations, while inducing natural cross ventilation. The catalog of finishing materials is reduced to using tiles in all interior floors, semi hardwood in stairs and woodwork, aluminum and painted steel in windows and light structures with bamboo ceilings. All interior walls and facade are covered with natural stucco obtained locally from the resin of the Chukum local tree, an ancient technique reinvented with modern materials by us in 1996 as a legacy for Yucatan contemporary architecture.
Architects: Reyes Ríos + Larraín Arquitectos
Location: 97139 Merida, Yucatan, Mexico
Project Architects: Salvador Reyes Ríos, Josefina Larraín Lagos
Project Area: 150.0 m2
Project Year: 2013
Photographs: Pim Schalkwijk
Project Collaborator: Jorge Arias Olaiz
Landscape: Josefina Larraín Lagos
Structures: Ing. Luis Díaz C
Civil Engineering: Proyecciones Civiles S.A. de C.V.













More Similar Articles Like This
Vibrant Wood Tones: Explore a Spectrum of Spray Paint Colors!
Exceptional Coronado Bay Front Estate in California
Spectacular Luxury House in Sarasota, Florida by DSDG Inc. Architects
Opulent Mandarin Oriental Hotel in Paris
Secluded Naladhu Island in Maldives
Extraordinary Constance Halaveli Maldives Resort
Plain Geometric Residence Designed by Lidija Dragisic
70 Shades of Green: Benjamin Moore’s Vibrant Paint Colors