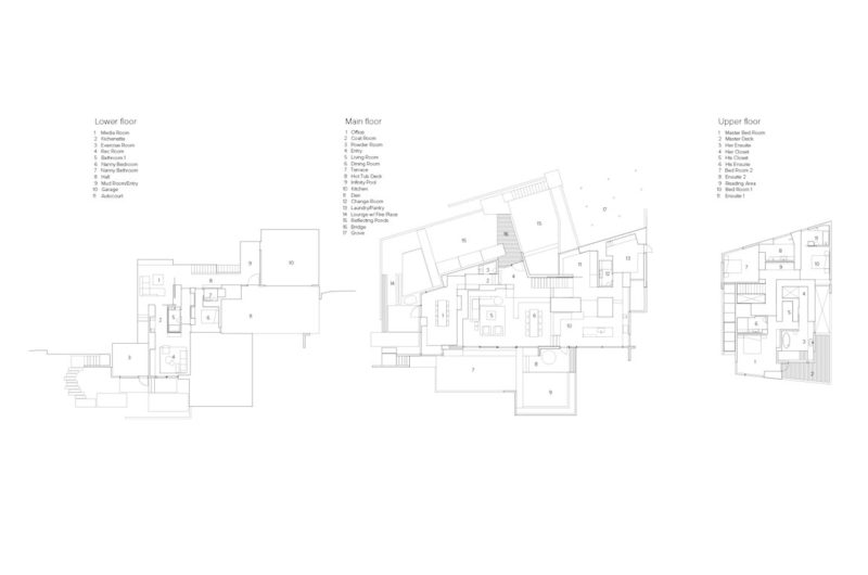
Esquimalt House is a single family home located in West Vancouver, Canada. It is a project developed by Mcleod Bovell Modern Houses, who made the house look like flowing laterally with a stepped horizontal navigation across and down through the site.
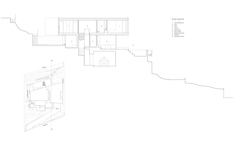
Three distinct experiences divide the twenty feet of vertical distance existent between the street and the main floor in order to attenuate a possible relentless downward movement. So, it starts with a couple of concrete platforms through a small ornamental orchard, it continues with a single run of stairs overhanging a pond and it ends with passing through a courtyard over a bridge to the front door.
Because the busy life of the owners requires the existence of a multifunctional location, this home operates simultaneously as a private place of retreat, a place of business and also as an entertaining space.
The design of the project follows clean and simple lines that permit the decorative elements to stand out and to direct the attention of the viewer towards sophisticated design items.













More Similar Articles Like This
Superb Luxury Penthouse in Portomaso, Malta
Stunning Banyan Tree Ungasan Bali in Indonesia
10 Different Types of Blue Paint Colors
Beautiful Apartment in Stockholm for $1 Million
Unique Click Clack Hotel In Bogota, Colombia
Exquisite Crossacres Mansion In Surrey, England
Exploring the New World of Luxury Hoteling
70 Shades of Green: Benjamin Moore’s Vibrant Paint Colors