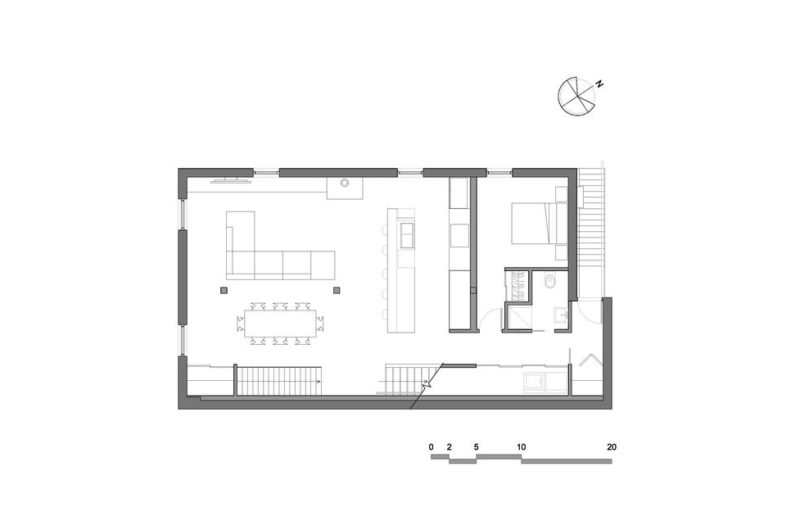
Even though this house was originally a red brick worker’s residence, the skilled architects at MU Architectures managed to transform it into a welcoming and comfortable modern home. The Mentana residence can be found in Montreal, Canada, and it impresses with a sublime, classic exterior design that conceals contemporary and luxurious interior arrangements.
For this very special project, MU Architecture used raw, natural materials such as wood for the staircase, concrete for the floors and cedar planks for the upmost volume of the house. As we mentioned before, this stunning home provides luxurious living accommodations for its fortunate owners. Apart from the comfortable master bedroom and the fully equipped kitchen, the residents benefit from a dinette area and from special barbecuing arrangements, while a lounge opening up to a main terrace ensures ample relaxation opportunities. The main bathroom is also quite impressive, featuring a lovely shower as well as a lavish Jacuzzi and splendid glass doors.



















More Similar Articles Like This
5 Ways to Turn Your Yard Into a Fancy Space
Vibrant Concrete Floor Paint Colors to Elevate Your Space
Beautiful Apartment in Stockholm for $1 Million
Benjamin Moore Exterior Paint: Vibrant Shades for a Striking Home
The Superb Maradiva Villas Resort & Spa in Mauritius
Astonishing El Tovar by the Sea
Gayton Road Residence by Paxton Locher Studio
Amazing Four Seasons Resort Bora Bora