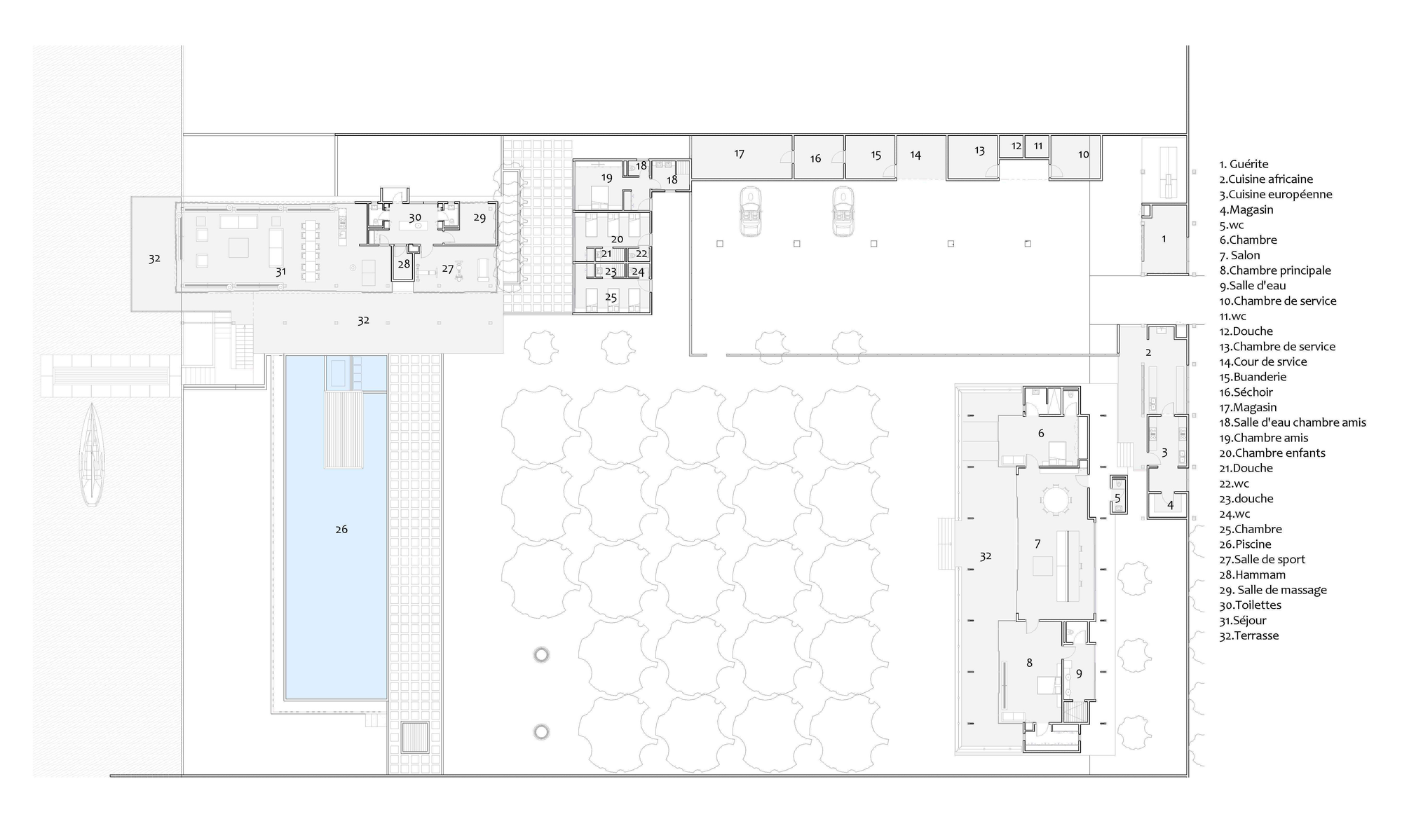
This amazing project by Koffi & Diabaté Architectes is a part of a larger urban landscaping project focused on a town called Assinie-Mafia in Ivory Coast, Africa. The Ebrah Pavilion is actually a residence that features interlinked private and living areas, each space being designed to serve a specific function.
As you can see in the images that we attached below, the project benefits from staggering views of the coast and was created using only the highest quality materials and finishes. Apart from the standard private and social spaces, there is also an outdoor deck with lounging chairs and a superb infinity swimming pool. The experts over at Koffi & Diabaté Architectes hope to transform Assinie-Mafia into an eco-friendly city where sustainability is a key component of its buildings’ designs. The Ebrah Pavilion was completed in 2007 on a 0.9-acre lot and flaunts 8,977 square feet of living space.
Architect In Charge: Guillaume Koffi
Site Area: 3750m2
Area: 834.0 sqm
Year: 2007
Photographs: François-Xavier Gbré














More Similar Articles Like This
Opulent Mandarin Oriental Hotel in Paris
Spectacular Luxury House in Sarasota, Florida by DSDG Inc. Architects
Santa Barbara Style Home in Paradise Valley, Phoenix
Secluded Naladhu Island in Maldives
Tips for Choosing the Right Blue Paint Color for Your Dining Room
Pure Perfection: Discover the Top White Paint Colors for a Flawless Décor
Dreamy Oceanfront Chateau In West Vancouver, Canada
Spectacular Rooftop Apartment by Innocad