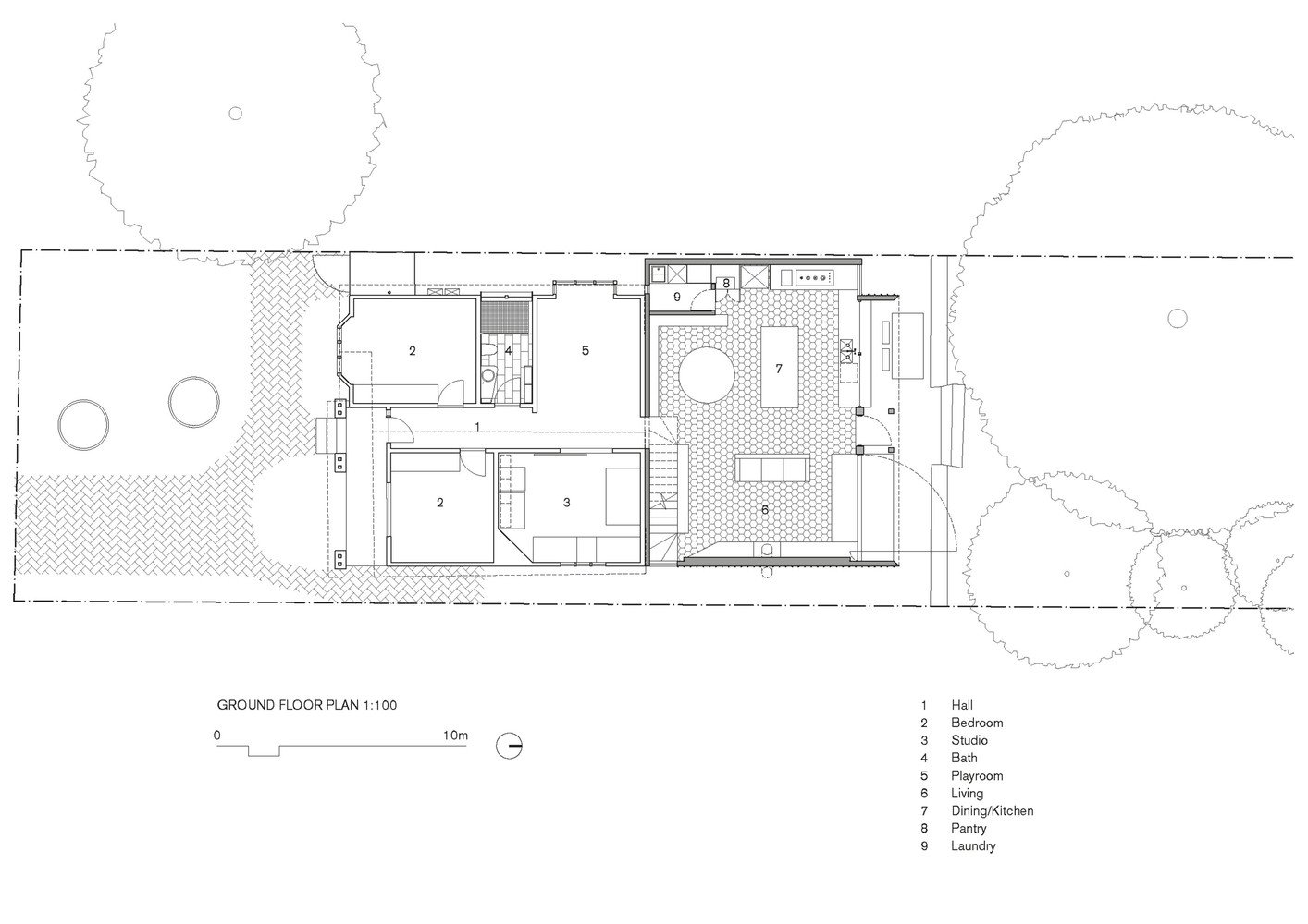
Doll’s House is a contemporary project that was completed in 2014 by BKK Architects. Based on an older design that dates back to 1557, the residence is able to ensure impressive living conditions for a family over a long period of time. That’s because it features versatile living spaces that can change function depending on the owners’ needs. Versatile and sustainable, the residence flaunts 2,206 square feet of living space thanks to a new addition that is composed of two volumes stacked upon each other.
The volumes feature no walls or doors, but instead boast joineries and furnishings that define their living spaces. As far as sustainability goes, the residence is equipped with R7 insulated fabrics, and it has thermal mass, low VOC materials, cross ventilation and optimum solar access. The low-energy LED lighting system also contributes to its sustainability. The surrounding landscaping includes wildflowers, native plants and vegetables, all of which are known for their resilience to drought.
From the architect:
Dolls House is an idea about providing flexible, highly sustainable living that is responsive to its context and able to adapt to the changing needs of a family over a long life-span. The first known Doll’s house, originally called a ‘baby house’ in 1557 was a showcase for local creatives and craftspeople to display their wares.
The Dolls House later became a play thing for children; a space of imagination. Shared ideas of creativity, craftsmanship, play and imagination underpin this house, whilst also mirroring the flexibility of the Doll’s house where a bedroom can become a living room or dining room by simply moving furniture or joinery.
The new addition is largely made up of two spaces stacked upon each other, with no doors or walls, just furniture and joinery to divide space and imply use. The two levels of the house are treated quite distinctly; the lower sunk below grade and heavily grounded, whilst the upper is soaring into the treetops. The new addition frees up the plan of the old house where the former living and dining areas have become a flexible buffer space with an artist studio and playroom that place creativity and play at the centre of the home.
There is a nostalgic reference to the child’s simple drawing of a house in its most basic form, with smoke billowing out of the chimney, a place of happiness and content. The façade is based on the opening credits of the children’s program Playschool where every window is different and provides a portal into some other world. The interior space of the house can be fully opened and extended to the landscape beyond. Materials have been carefully chosen for their ability to demonstrate a level of craft; from oversized exposed timber beams to hand-painted tiles by the owner.
Sustainably the house is rethought from first principles; transforming a drafty, uninsulated timber bungalow into a well-performing house of the future. The house is reorientated to the north and employs: perfect solar access, an R7 insulated fabric, highly sealed envelope, thermal mass, low VOC materials and excellent cross ventilation.
The lighting is custom designed and manufactured low-energy LED that is fully integrated into the built fabric. The striped façade is borrowed from zebras, the only equine animal to live in the savannahs. When captured by thermal imaging, the zebra stripes show large temperature differential across the different colours, creating small currents of airflow across their bodies.
The landscaping is practical and largely drought tolerant, with the use of grey water re-cycling to water the fruit trees and an underground rain water tank to water the vegetables. There is a combination of wildflowers, Succulents and natives interspersed with edible plants and vegetables like tomatoes, pumpkins and beans. The two circular concrete planters out the front are re-purposed water tanks without the top and bottom.
Architects: BKK Architects
Location: Northcote VIC, Australia
Area: 205.0 sqm
Project Year: 2014
Photographs: Shannon McGrath, Hillary Walker
Project Team: Simon Knott, Adi Atic, Madeleine Beech
Builder: Creo Libera; Jeremy Dickson, Julian Woodhouse
Structural Engineer: Perrett Simpson Stanton
Building Surveyor: Group II
Electrical: C&B Electrical
Plumbing: Green Light Plumbing
Painter: JT Colourtone
Joinery: The Cabinet and Furniture Shop
Landscape Design: Tai Snaith
Landscape Contracting: Architectural Plants













More Similar Articles Like This
Extraordinary Constance Halaveli Maldives Resort
Stunning Sustainable Home in Costa Rica by SPG Architects
6 Garden and Lawn Tips to Get Ready for Spring
The Sophisticated Casa Villa Flamingo in Spain
Stunning Banyan Tree Ungasan Bali in Indonesia
Outstanding Bodrum Houses in Yalikavak, Turkey
Dreamy Oceanfront Chateau In West Vancouver, Canada
Loving Luxury at Mardan Palace Resort, Turkey