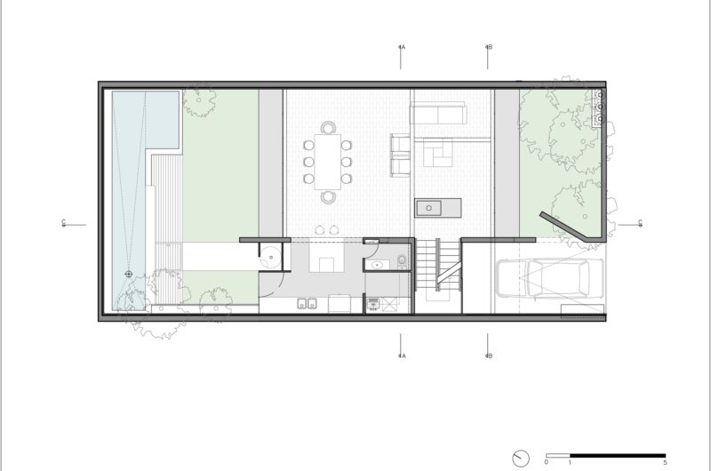
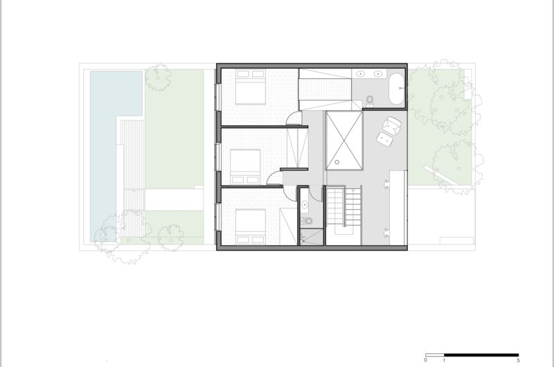
The Itobi house was completed in 2012 in São Paulo, Brazil by a firm called Apiacás Arquitetos, and it features a cozy, welcoming interior design based on warm color tones and earthly textures. The abode offers 2,152 square feet of living space and has been renovated under the supervision of project architects Anderson Freitas, Pedro Barros and Acácia Furuya.
With a heritage that dates back to 1950, this house was transformed dramatically in order to meet modern standards of comfort and elegance. Its old guesthouse was torn down in order to provide enough space for a special relaxation area that now boasts swimming pools and gardens. The original ground floor was also redesigned extensively in order to support for an upper volume that houses the private office and the bedrooms.
Ventilation and natural illumination were important factors that were addressed during the renovation project. The Itobi house impresses with large windows, spacious living areas, modern furniture pieces and a warm atmosphere.
Photos by Pregnolato e Kusuki Estúdio Fotográfico
















More Similar Articles Like This
70 Shades of Green: Benjamin Moore’s Vibrant Paint Colors
Spectacular Luxury House in Sarasota, Florida by DSDG Inc. Architects
Tips for Choosing the Right Blue Paint Color for Your Dining Room
Lovelli Residence: Mediterranean-Style Dwelling in Bali
Vibrant Concrete Floor Paint Colors to Elevate Your Space
Dreamy Oceanfront Chateau In West Vancouver, Canada
Contemporary BO House In Envigado, Antioquia, Colombia
Superb Luxury Penthouse in Portomaso, Malta