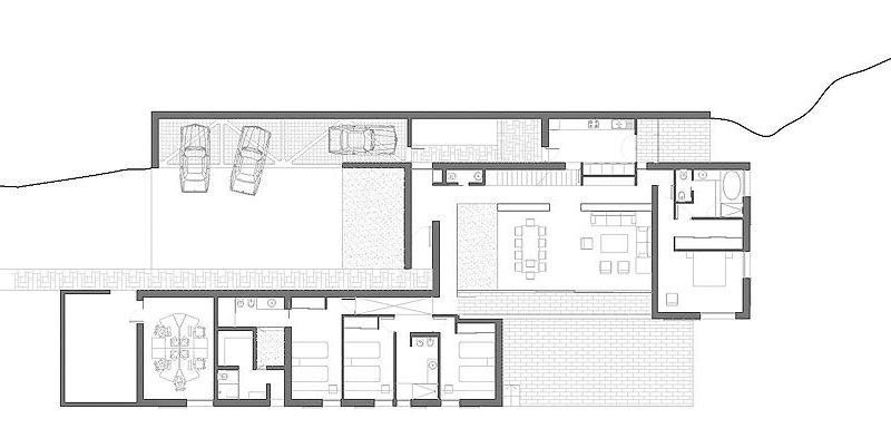
With a simple, minimalist architecture, the AA House can be found in Mojácar, Spain, overlooking the beautiful Mediterranean Sea. It is situated on a steel slope and features three longitudinal strips, making up the three levels of the house.
In all, there are 3,068 square feet of space: a kitchen and garage on the ground level; the main space, including a double height living area, on the first floor; guest and children rooms, arts workshop, and small sauna on the top floor. The residence was completed in 2007 by MVN Architects.





















More Similar Articles Like This
How Seattle Lawn Care Service Deals With Overgrown Lawns
Dreamy Oceanfront Chateau In West Vancouver, Canada
The Superb Maradiva Villas Resort & Spa in Mauritius
Different Types Of Foundations For Summer Houses and Garden Buildings
Stunning Banyan Tree Ungasan Bali in Indonesia
Loving Luxury at Mardan Palace Resort, Turkey
Best paint colors for the living room
Exquisite Crossacres Mansion In Surrey, England