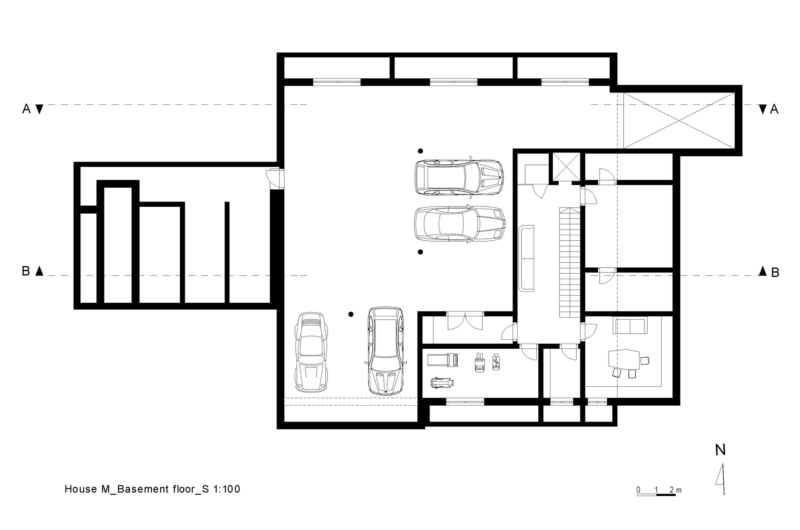
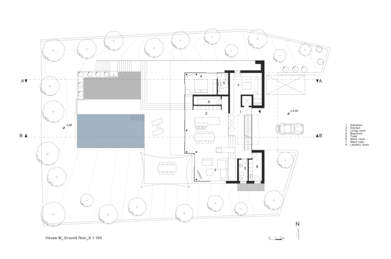
The House M is a fancy residence located in the centre of Meran integrated in the quiet area of Obermais. The whole idea of the project was the mix between transparent and solid surfaces to create a spectacular design. The interior communicates very well with the outdoor area giving the impression of a single unit. The large garden area completes the house adding life to the whole concept. There is no need for big words to describe this spectacular home because the pictures will do the work. We’re inviting you to delight your eyesight!
Architects: monovolume architecture + design
























More Similar Articles Like This
Unique Click Clack Hotel In Bogota, Colombia
Lovelli Residence: Mediterranean-Style Dwelling in Bali
Seamlessly Apartment by the Beach by ZZ Architects
5 Ways to Turn Your Yard Into a Fancy Space
10 Different Types of Blue Paint Colors
Outstanding Bodrum Houses in Yalikavak, Turkey
Plain Geometric Residence Designed by Lidija Dragisic
A Superb Italianate Mansion in California, USA