The Clifton View 7 in Cape Town, Africa was designed by Antoni Associates. The wish of the owners was to transform a double-level apartment into a home with four bedrooms, an en-suite, a gym, an entertainment cocktail bar, a cinema room and a wine cellar.
It offers incredible views over the Atlantic Ocean, the Clifton beaches and the Twelve Apostles mountain range.
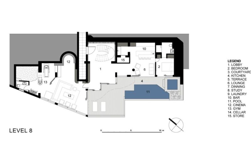
The apartment can be accessed through the upper level. The dining area acts like a connection point between the spiral staircase and the entertainment space.
A lot of styles and ideas were mixed together to create a unique interior design and to give the apartment its own personality.
From the infinity pool you can see the expanse of the Atlantic City. Isn’t this beautiful or what?




















More Similar Articles Like This
Superb Luxury Penthouse in Portomaso, Malta
Pure Perfection: Discover the Top White Paint Colors for a Flawless Décor
A Superb Italianate Mansion in California, USA
Spectacular Luxury House in Sarasota, Florida by DSDG Inc. Architects
These Top Tips Will Help You to Turn Your Garden into the Ultimate Glamping Site!
Loving Luxury at Mardan Palace Resort, Turkey
The Superb Villa Verai on Phuket Island, Thailand
Seamlessly Apartment by the Beach by ZZ Architects