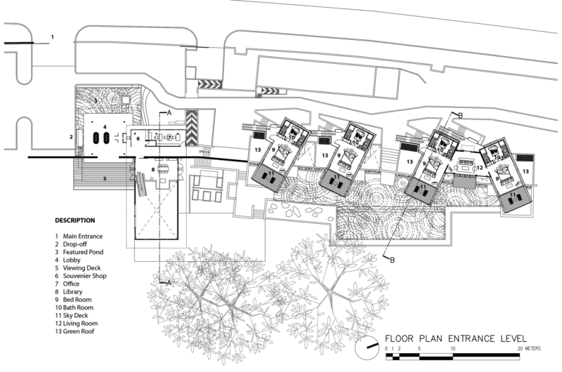
X2 River Kwai is a dreamy resort that can be found in Nong Ya, within the Mueang Kanchanaburi District of Kanchanaburi in Thailand. Designed with utmost attention to detail by Agaligo Studio, the resort was completed in 2014 and was built alongside a picturesque stretch of the Kwai Noi River. Flanked by a mountain range, a river, sugar cane plantations and rice paddies, this is definitely a perfect vacation destination for those of you who are looking for a tranquil corner of paradise away from the chaos of a big city.
The X2 River Kwai resort was built with sustainability and eco-friendliness in mind, and so its entire construction process was centered around the principle of a “light structure”. However, aside from its lightness, the resort also impresses with highly efficient insulation and with a series of modern, low-energy facilities. Examples include special electrical key tags that turn off electricity within the rooms when they are not inhabited, but we can also mention the high-end air conditioning systems that are turned off if a door is left open for more than 5 minutes. The theme carries on with LED lighting arrangements that use substantially less power when compared to conventional artificial lighting.
Last but not least, nature also helps keep this place green, cool and welcoming. Numerous large rain trees were left unharmed during the development process because the architects were well aware of their potential for energy saving and Co2 absorption. Furthermore, the nearby river provides plenty of water that can be used for local irrigation.























More Similar Articles Like This
Different Types Of Foundations For Summer Houses and Garden Buildings
Pure Perfection: Discover the Top White Paint Colors for a Flawless Décor
Green Gables Home In Fairfield, Connecticut, United States
Shadowed Depths: Vintage-inspired Paint Colors for Dark Basements
Stunning Sustainable Home in Costa Rica by SPG Architects
Spectacular Rooftop Apartment by Innocad
Beautiful Apartment in Stockholm for $1 Million
Superb Luxury Penthouse in Portomaso, Malta