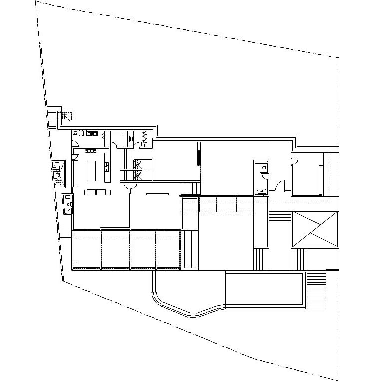
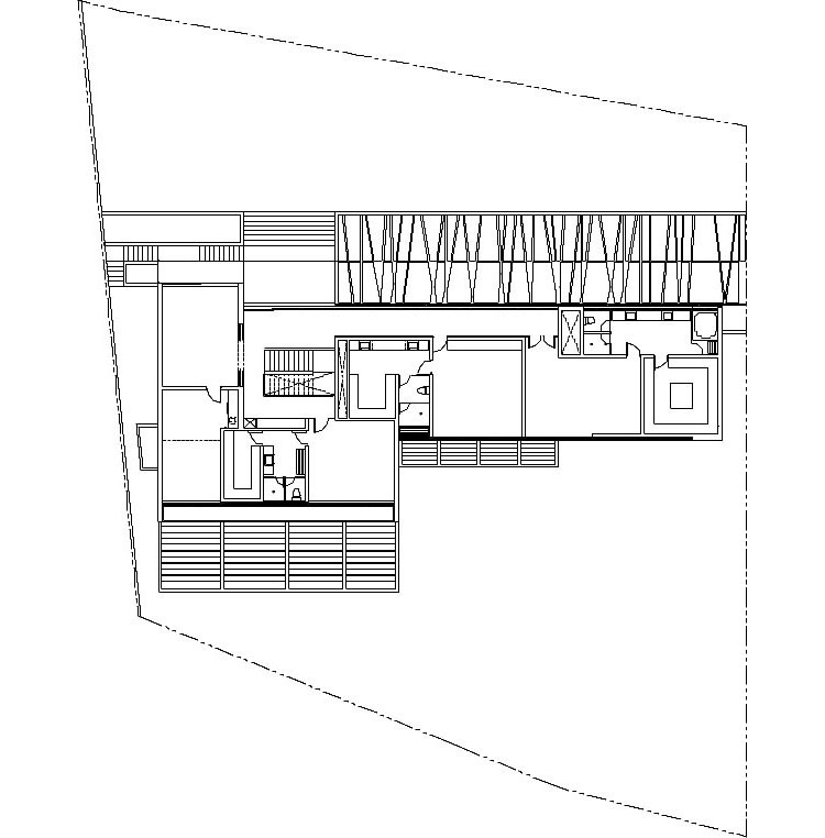
Resting on a generous 17,250-square-foot property, CG House is a stunningly beautiful home created by GLR Arquitectos. The site is right next to the Sierra Madre mountains in Monterrey, Mexico. Completed in 2009, the residence boasts 10,650 square feet of spaces, all beautifully decorated in an elegant contemporary style.
The steep slope on which the CG House was built was both a challenge and an opportunity for the architects. They had to overcome some difficulties, but now guests can enjoy sweeping views towards the garden and the city. The special topography of the site also required a massive concrete wall to enclose and define the garden and swimming pool areas. The house itself is clad in brown/black volcanic stone, white stucco, IPE wood and steel.
A 12-ft high dark oak door opens to an imposing home with a grand foyer featuring 15-foot high walls decorated with silver leaf. Also here guests can find a large sculptural piece of coconut roots, rocks and steel.
In the living room, family room and dining room large windows afford unobstructed views of the gardens and blur the border between inside and outside spaces. The more private areas of the house offer access to another garden, a more recreational and less formal one, set at the highest point of the site. CG House is a truly spectacular project, oozing luxury and fine taste.


















More Similar Articles Like This
The JKC1 House in Bukit Timah, Singapore
Pure Perfection: Discover the Top White Paint Colors for a Flawless Décor
Plain Geometric Residence Designed by Lidija Dragisic
Gayton Road Residence by Paxton Locher Studio
10 Different Types of Blue Paint Colors
Green Gables Home In Fairfield, Connecticut, United States
Seamlessly Apartment by the Beach by ZZ Architects
Behr’s Brilliant Blues: 70 Shades of Stunning Paint Colors