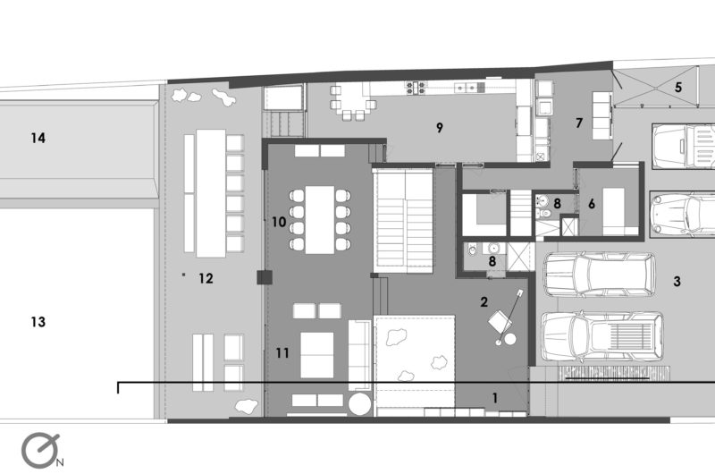
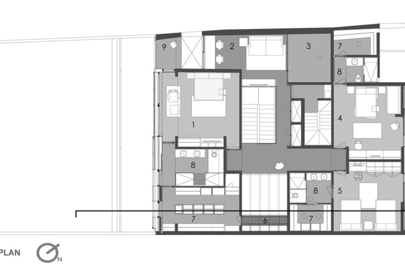
Elías Rizo Arquitectos has designed the Casa RO, a beautiful two-story home situated in Guadalaraja, Jalisco, Mexico.
The house is a reconstruction of an old 60s residence, from which a lot was rescued. The building still has an honest distribution, straight lines, and communication with the exterior, specific to that time. Although some of the adjacent areas were demolished, the flooring on the ground floor was kept almost entirely.
The building’s main focus points are the double height foyer, restored as a sculptural area, and the terrace, which is the place where the family members spend time together and relax. The architects managed to create a modern and unique residence combining old and new materials and techniques.


















More Similar Articles Like This
These Top Tips Will Help You to Turn Your Garden into the Ultimate Glamping Site!
Green Gables Home In Fairfield, Connecticut, United States
Loving Luxury at Mardan Palace Resort, Turkey
Pure Perfection: Discover the Top White Paint Colors for a Flawless Décor
Seamlessly Apartment by the Beach by ZZ Architects
Heavenly Lily Beach Resort & Spa In Huvahendhoo, Maldives
10 Different Types of Blue Paint Colors
Exploring the New World of Luxury Hoteling